2022
Drift Road,
Drift Road
Drift Road
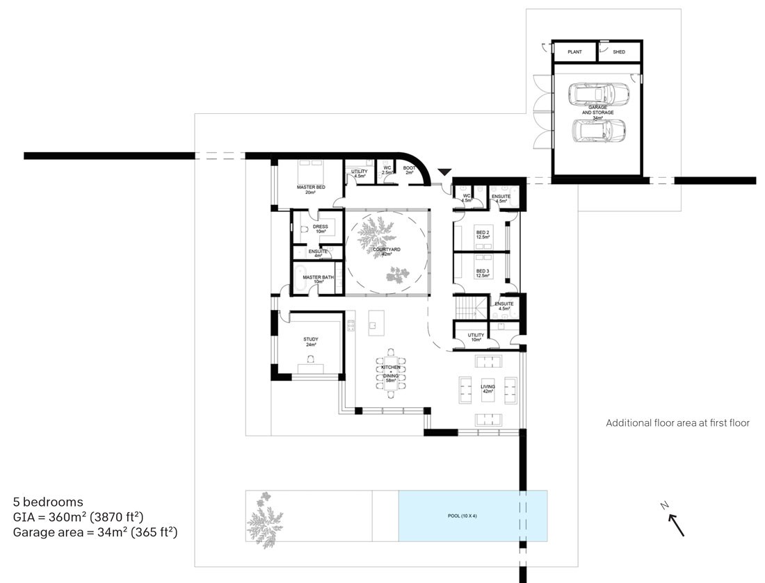
A country house. Developed for a couple relocating from London to the Hampshire countryside, this elegant, five-bedroom new-build house is designed to accommodate a growing family and transform their well-being.




Connected with nature
The barn-like form, with its exposed timber structure, riffs on rural vernacular and creates a spacious, adaptable, double-height kitchen and living space.
Designed around a glazed wind-sheltered internal courtyard, the house has plentiful windows offering views from its elevated position out across the fields. Our proposal fulfils the client’s desire for the building to offer a variety of experiences of the surrounding landscape – both intimate and expansive.
Tactile materials further enrich the living environment and reinforce the connection with nature, creating a contemporary and sustainable house with enduring appeal.




Connected with nature
The barn-like form, with its exposed timber structure, riffs on rural vernacular and creates a spacious, adaptable, double-height kitchen and living space.
Designed around a glazed wind-sheltered internal courtyard, the house has plentiful windows offering views from its elevated position out across the fields. Our proposal fulfils the client’s desire for the building to offer a variety of experiences of the surrounding landscape – both intimate and expansive.
Tactile materials further enrich the living environment and reinforce the connection with nature, creating a contemporary and sustainable house with enduring appeal.




Connected with nature
The barn-like form, with its exposed timber structure, riffs on rural vernacular and creates a spacious, adaptable, double-height kitchen and living space.
Designed around a glazed wind-sheltered internal courtyard, the house has plentiful windows offering views from its elevated position out across the fields. Our proposal fulfils the client’s desire for the building to offer a variety of experiences of the surrounding landscape – both intimate and expansive.
Tactile materials further enrich the living environment and reinforce the connection with nature, creating a contemporary and sustainable house with enduring appeal.




Building in the countryside
An ambitious environmental agenda underpins the design with highly insulated timber construction, renewable energy provision and passive solar design all integrated to create an efficient low energy building.
This project overlaps with an initiative we have recently been developing with Lewis Silkin aimed at demystifying the process of building new build homes in the countryside. For more information, please get in touch.




Building in the countryside
An ambitious environmental agenda underpins the design with highly insulated timber construction, renewable energy provision and passive solar design all integrated to create an efficient low energy building.
This project overlaps with an initiative we have recently been developing with Lewis Silkin aimed at demystifying the process of building new build homes in the countryside. For more information, please get in touch.




Building in the countryside
An ambitious environmental agenda underpins the design with highly insulated timber construction, renewable energy provision and passive solar design all integrated to create an efficient low energy building.
This project overlaps with an initiative we have recently been developing with Lewis Silkin aimed at demystifying the process of building new build homes in the countryside. For more information, please get in touch.




E330.
Drift Road
Year:
2022
Location: Hampshire
, England
Category:
Private
































