Paragon Court, Margate
2019-21
E200
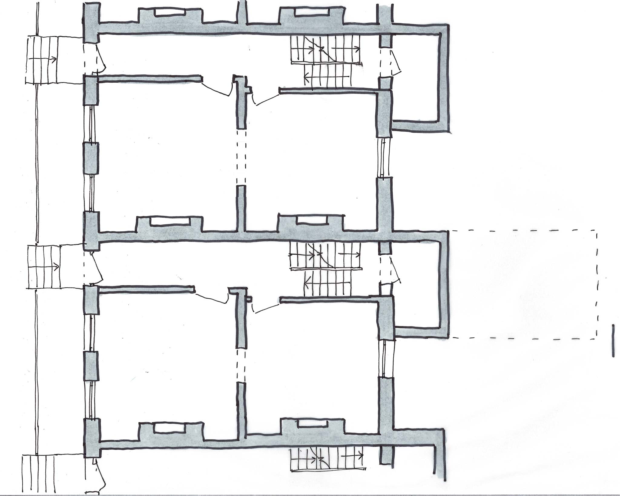
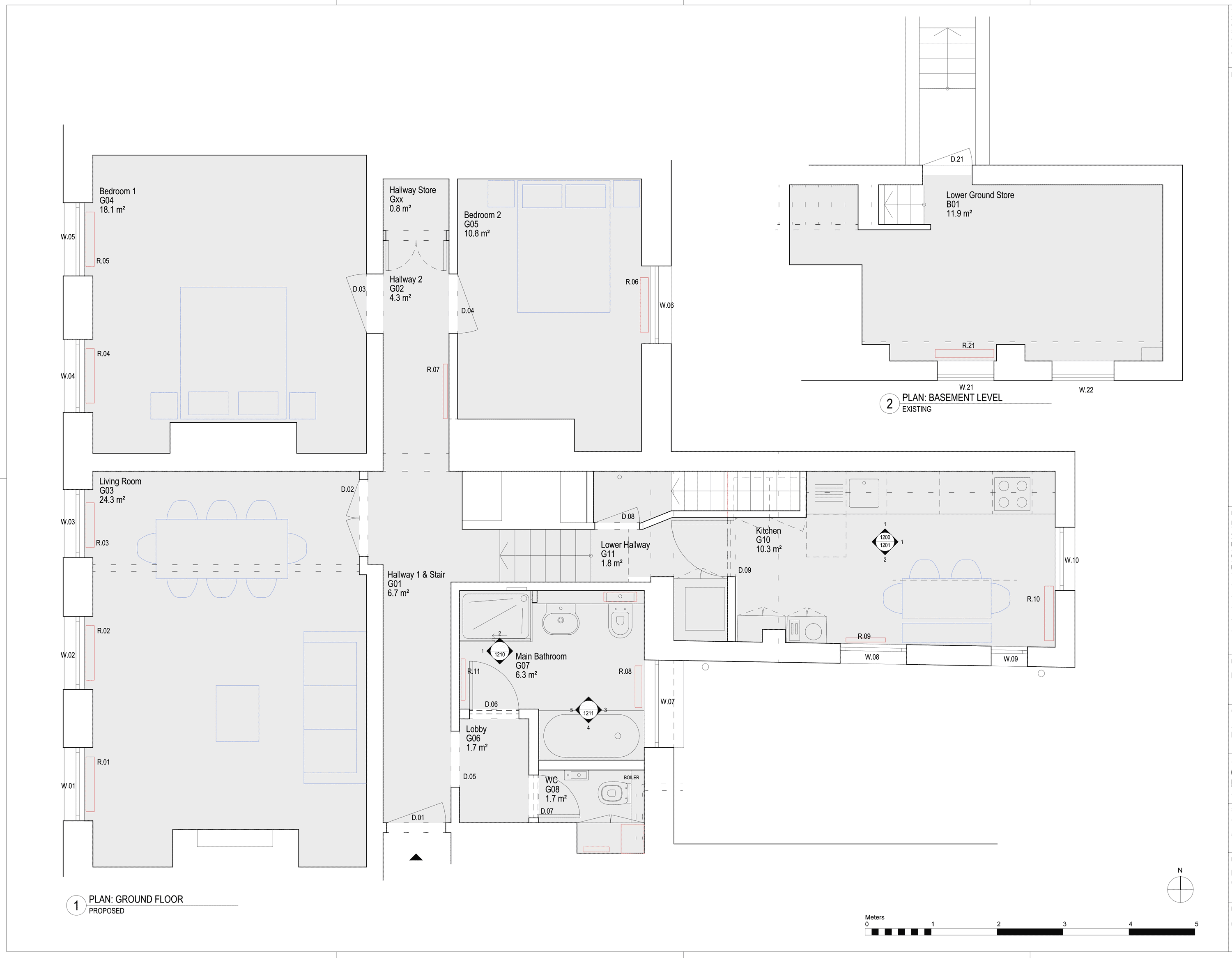
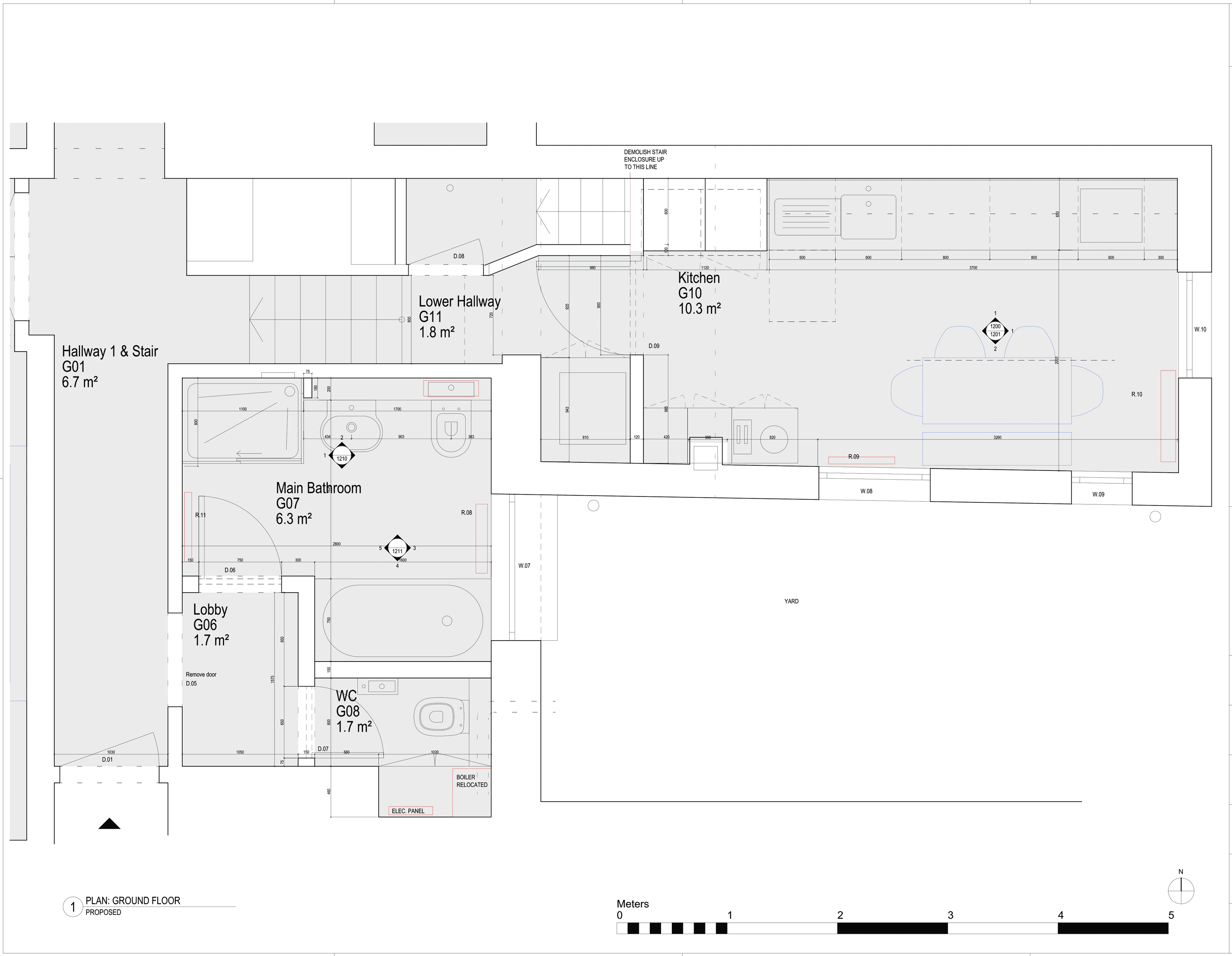
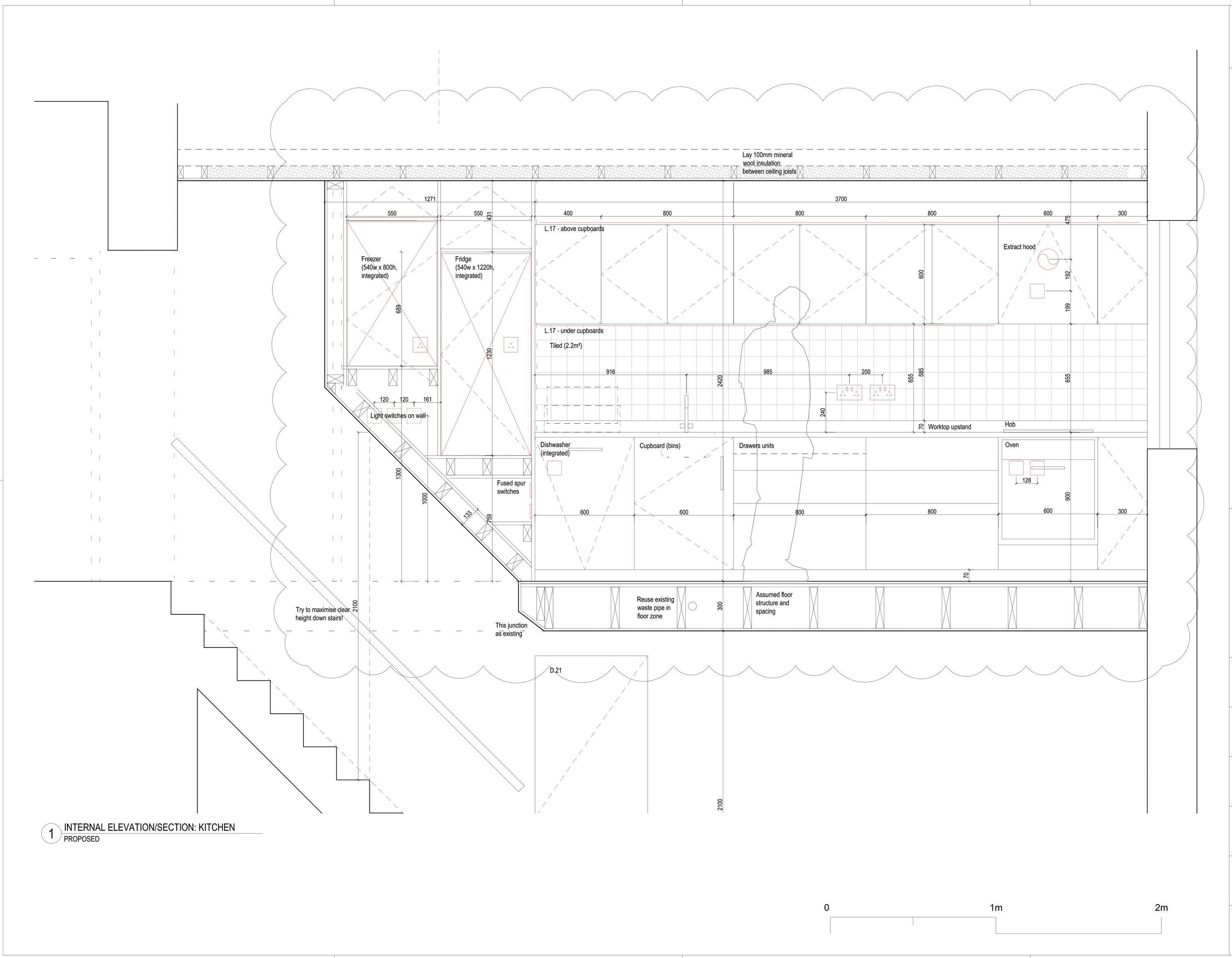
Full refurbishment and reconfiguration of a flat in a beachside Grade II listed block. The kitchen was relocated to the east to enjoy views along the waterfront and morning light, swapping places with bathrooms. The west-facing living room has incredible summer sunsets. The block was originally terraced houses, but in c. 1870s became various hotels and the internal layout was totally changed, with a corridor punched down the middle and a number of original front doors turned into windows. As a result the flats in the building all have very unusual layouts, with no two flats the same.
More text
Full refurbishment and reconfiguration of a flat in a beachside Grade II listed block. The kitchen was relocated to the east to enjoy views along the waterfront and morning light, swapping places with bathrooms. The west-facing living room has incredible summer sunsets. The block was originally terraced houses, but in c. 1870s became various hotels and the internal layout was totally changed, with a corridor punched down the middle and a number of original front doors turned into windows. As a result the flats in the building all have very unusual layouts, with no two flats the same.
More text
Full refurbishment and reconfiguration of a flat in a beachside Grade II listed block. The kitchen was relocated to the east to enjoy views along the waterfront and morning light, swapping places with bathrooms. The west-facing living room has incredible summer sunsets. The block was originally terraced houses, but in c. 1870s became various hotels and the internal layout was totally changed, with a corridor punched down the middle and a number of original front doors turned into windows. As a result the flats in the building all have very unusual layouts, with no two flats the same.
More text
Full refurbishment and reconfiguration of a flat in a beachside Grade II listed block. The kitchen was relocated to the east to enjoy views along the waterfront and morning light, swapping places with bathrooms. The west-facing living room has incredible summer sunsets. The block was originally terraced houses, but in c. 1870s became various hotels and the internal layout was totally changed, with a corridor punched down the middle and a number of original front doors turned into windows. As a result the flats in the building all have very unusual layouts, with no two flats the same.
More text
Full refurbishment and reconfiguration of a flat in a beachside Grade II listed block. The kitchen was relocated to the east to enjoy views along the waterfront and morning light, swapping places with bathrooms. The west-facing living room has incredible summer sunsets. The block was originally terraced houses, but in c. 1870s became various hotels and the internal layout was totally changed, with a corridor punched down the middle and a number of original front doors turned into windows. As a result the flats in the building all have very unusual layouts, with no two flats the same.
More text














































Process
Selected details
























During refurbishment
























Historic research into the evolution from terraced houses into several hotels




































Drawings









E200.
Paragon Court, Margate
Year:
2019-21
Location: Margate
, UK
Category:
Private
, Heritage
Restrictions: Grade II listed
Photos: Peter Landers
Read more about how we work on heritage projects.