Peckham Watch Factory
2024-
224
The Peckham Watch Factory reimagines an underutilised industrial building into a bespoke manufacturing and design workspace for an independent London-based watchmaker. The proposal transforms an existing single-storey industrial structure into a purpose-built facility that centralises operations currently spread across multiple sites in South London.
More text
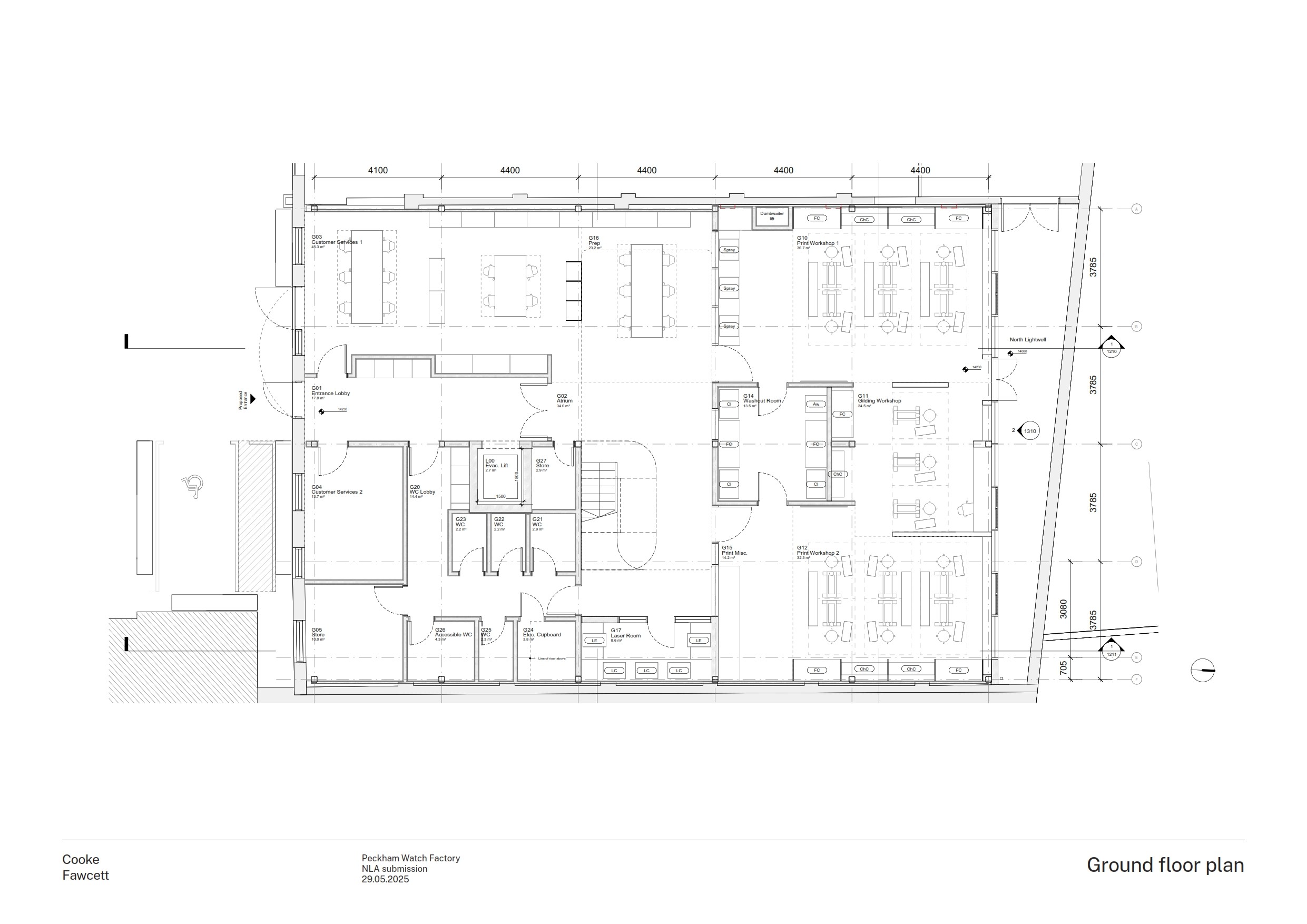
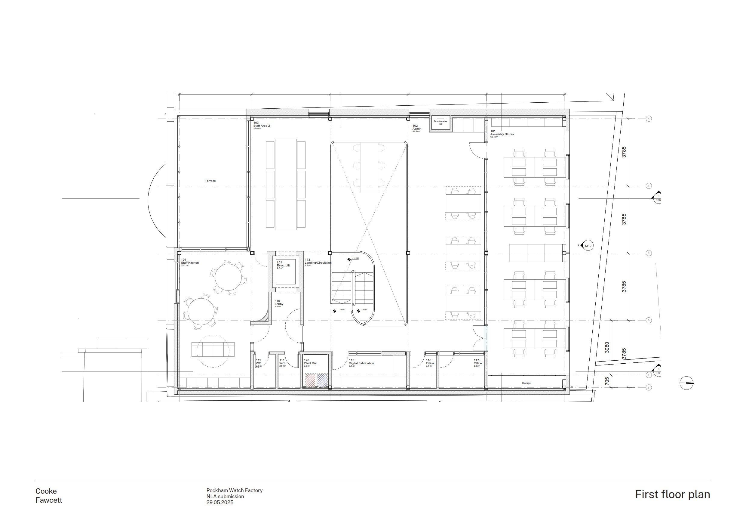
Driven by the specific requirements of precision watchmaking, the design creates 672m² of high-performance workspace across two levels, tailored to support specialised production processes. The spatial organisation follows the watchmaking workflow, from component preparation and printing to assembly and distribution, creating an efficient environment that enhances productivity and craftsmanship.
The workspace is anchored around a central atrium that brings natural light deep into the building and creates visual connections between production areas. At ground level, print workshops and preparation spaces benefit from controlled north light through a new northern lightwell, while customer service areas are positioned at the south end for easy access to the service yard. The upper floor houses the assembly studio, requiring exceptional daylight quality for intricate work, alongside administrative spaces and staff amenities including a south-facing terrace.
The building's distinctive form is defined by a saw-tooth roof profile with north-facing glazing, designed to provide optimal indirect daylight for detailed manufacturing work while preventing glare—essential for precision fabrication that requires consistent, high-quality illumination. This profile references the industrial heritage of Peckham while creating a contemporary interpretation suited to modern manufacturing.
Employing a retrofit-first approach, the design preserves the existing structure where possible, retaining characterful gable walls while adding a new floor level. This strategy reduces embodied carbon while creating spaces precisely calibrated to watchmaking requirements.
With planning approval expected imminently (early 2026), the project demonstrates how industrial workspaces can be reimagined to support skilled manufacturing in London, securing the future of a growing local business and preserving specialist employment in Southwark.
The Peckham Watch Factory reimagines an underutilised industrial building into a bespoke manufacturing and design workspace for an independent London-based watchmaker. The proposal transforms an existing single-storey industrial structure into a purpose-built facility that centralises operations currently spread across multiple sites in South London.
More text
Driven by the specific requirements of precision watchmaking, the design creates 672m² of high-performance workspace across two levels, tailored to support specialised production processes. The spatial organisation follows the watchmaking workflow, from component preparation and printing to assembly and distribution, creating an efficient environment that enhances productivity and craftsmanship.
The workspace is anchored around a central atrium that brings natural light deep into the building and creates visual connections between production areas. At ground level, print workshops and preparation spaces benefit from controlled north light through a new northern lightwell, while customer service areas are positioned at the south end for easy access to the service yard. The upper floor houses the assembly studio, requiring exceptional daylight quality for intricate work, alongside administrative spaces and staff amenities including a south-facing terrace.
The building's distinctive form is defined by a saw-tooth roof profile with north-facing glazing, designed to provide optimal indirect daylight for detailed manufacturing work while preventing glare—essential for precision fabrication that requires consistent, high-quality illumination. This profile references the industrial heritage of Peckham while creating a contemporary interpretation suited to modern manufacturing.
Employing a retrofit-first approach, the design preserves the existing structure where possible, retaining characterful gable walls while adding a new floor level. This strategy reduces embodied carbon while creating spaces precisely calibrated to watchmaking requirements.
With planning approval expected imminently (early 2026), the project demonstrates how industrial workspaces can be reimagined to support skilled manufacturing in London, securing the future of a growing local business and preserving specialist employment in Southwark.
The Peckham Watch Factory reimagines an underutilised industrial building into a bespoke manufacturing and design workspace for an independent London-based watchmaker. The proposal transforms an existing single-storey industrial structure into a purpose-built facility that centralises operations currently spread across multiple sites in South London.
More text
Driven by the specific requirements of precision watchmaking, the design creates 672m² of high-performance workspace across two levels, tailored to support specialised production processes. The spatial organisation follows the watchmaking workflow, from component preparation and printing to assembly and distribution, creating an efficient environment that enhances productivity and craftsmanship.
The workspace is anchored around a central atrium that brings natural light deep into the building and creates visual connections between production areas. At ground level, print workshops and preparation spaces benefit from controlled north light through a new northern lightwell, while customer service areas are positioned at the south end for easy access to the service yard. The upper floor houses the assembly studio, requiring exceptional daylight quality for intricate work, alongside administrative spaces and staff amenities including a south-facing terrace.
The building's distinctive form is defined by a saw-tooth roof profile with north-facing glazing, designed to provide optimal indirect daylight for detailed manufacturing work while preventing glare—essential for precision fabrication that requires consistent, high-quality illumination. This profile references the industrial heritage of Peckham while creating a contemporary interpretation suited to modern manufacturing.
Employing a retrofit-first approach, the design preserves the existing structure where possible, retaining characterful gable walls while adding a new floor level. This strategy reduces embodied carbon while creating spaces precisely calibrated to watchmaking requirements.
With planning approval expected imminently (early 2026), the project demonstrates how industrial workspaces can be reimagined to support skilled manufacturing in London, securing the future of a growing local business and preserving specialist employment in Southwark.
The Peckham Watch Factory reimagines an underutilised industrial building into a bespoke manufacturing and design workspace for an independent London-based watchmaker. The proposal transforms an existing single-storey industrial structure into a purpose-built facility that centralises operations currently spread across multiple sites in South London.
More text
Driven by the specific requirements of precision watchmaking, the design creates 672m² of high-performance workspace across two levels, tailored to support specialised production processes. The spatial organisation follows the watchmaking workflow, from component preparation and printing to assembly and distribution, creating an efficient environment that enhances productivity and craftsmanship.
The workspace is anchored around a central atrium that brings natural light deep into the building and creates visual connections between production areas. At ground level, print workshops and preparation spaces benefit from controlled north light through a new northern lightwell, while customer service areas are positioned at the south end for easy access to the service yard. The upper floor houses the assembly studio, requiring exceptional daylight quality for intricate work, alongside administrative spaces and staff amenities including a south-facing terrace.
The building's distinctive form is defined by a saw-tooth roof profile with north-facing glazing, designed to provide optimal indirect daylight for detailed manufacturing work while preventing glare—essential for precision fabrication that requires consistent, high-quality illumination. This profile references the industrial heritage of Peckham while creating a contemporary interpretation suited to modern manufacturing.
Employing a retrofit-first approach, the design preserves the existing structure where possible, retaining characterful gable walls while adding a new floor level. This strategy reduces embodied carbon while creating spaces precisely calibrated to watchmaking requirements.
With planning approval expected imminently (early 2026), the project demonstrates how industrial workspaces can be reimagined to support skilled manufacturing in London, securing the future of a growing local business and preserving specialist employment in Southwark.
The Peckham Watch Factory reimagines an underutilised industrial building into a bespoke manufacturing and design workspace for an independent London-based watchmaker. The proposal transforms an existing single-storey industrial structure into a purpose-built facility that centralises operations currently spread across multiple sites in South London.
More text
Driven by the specific requirements of precision watchmaking, the design creates 672m² of high-performance workspace across two levels, tailored to support specialised production processes. The spatial organisation follows the watchmaking workflow, from component preparation and printing to assembly and distribution, creating an efficient environment that enhances productivity and craftsmanship.
The workspace is anchored around a central atrium that brings natural light deep into the building and creates visual connections between production areas. At ground level, print workshops and preparation spaces benefit from controlled north light through a new northern lightwell, while customer service areas are positioned at the south end for easy access to the service yard. The upper floor houses the assembly studio, requiring exceptional daylight quality for intricate work, alongside administrative spaces and staff amenities including a south-facing terrace.
The building's distinctive form is defined by a saw-tooth roof profile with north-facing glazing, designed to provide optimal indirect daylight for detailed manufacturing work while preventing glare—essential for precision fabrication that requires consistent, high-quality illumination. This profile references the industrial heritage of Peckham while creating a contemporary interpretation suited to modern manufacturing.
Employing a retrofit-first approach, the design preserves the existing structure where possible, retaining characterful gable walls while adding a new floor level. This strategy reduces embodied carbon while creating spaces precisely calibrated to watchmaking requirements.
With planning approval expected imminently (early 2026), the project demonstrates how industrial workspaces can be reimagined to support skilled manufacturing in London, securing the future of a growing local business and preserving specialist employment in Southwark.























Awards & Press
New London Architecture (NLA) Awards 2025 — Winner, Workplaces category (unbuilt) link
"The winner was chosen for its ambition to transform an existing industrial building into a sustainable and characterful new workspace. The judges recognised its potential to cultivate a strong sense of community and to thoughtfully revive local craft and making."
Process
Concept design
























Existing site conditions and historic research — former furniture making and printing workshops, located on a private yard behind a terrace of Victorian houses of Philip Road






























Observations of current watchmaking and printing spaces















Drawings












224.
Peckham Watch Factory
Year:
2024-
Location: Peckham, London
, UK
Category:
Private
, Workspace
, Arts
Francis Fawcett, Oliver Cooke; Alec Crisp, Julia Belozertseva, Rory Browne
Structures: SD Engineers
Sustainability / MEP: Skelly & Couch
Project management: Patten Project Management
Costs: Matthew Headley
Planning: Iceni
Transport consultant: Velocity
Fire consultant: The Fire Surgery
Read more about how we work on arts projects.