Pandora Road
Location: West Hampstead, London
, UK
Status: Planning consented
Area: 240m² / 2,580ft²
2023-26


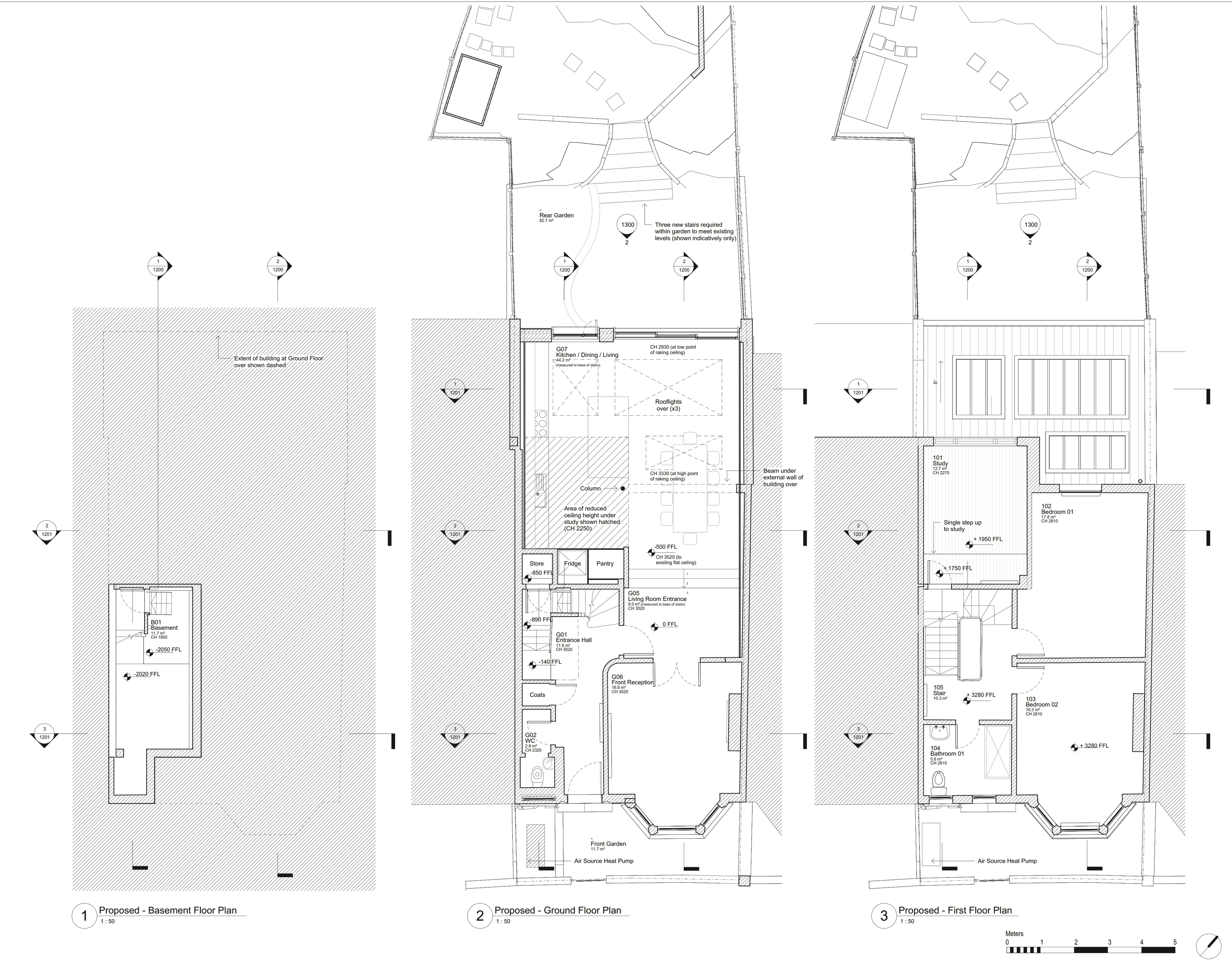
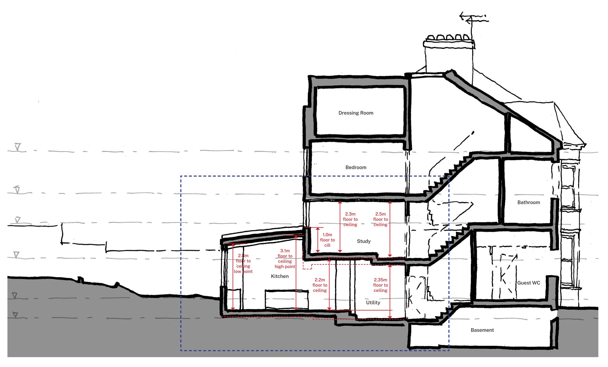
This refurbishment of a three-storey Victorian terrace in West Hampstead unifies a fragmented house around a generous lower-ground living space, open to a rear garden that extends well beyond the typical terrace plot. A full-width ground floor extension with large north-facing sliding doors and three new rooflights transforms what was a subterranean, poorly-lit kitchen and dingy rear reception into the heart of the house. Twenty years of deferred maintenance and a poorly resolved split-level outrigger gave the project its starting point; the proposal rebuilds the relationship between inside and outside from the ground up.
Read More
The central design move is a floor-level unification at lower ground. Trial pits confirmed an existing void beneath the dining room floor, allowing the level to be lowered to mid-height without underpinning or basement classification. Three wide steps now connect the front reception level to a unified kitchen and dining space below: accessible, legible, and no longer a series of compromises stacked on top of each other. Three rooflights over the extension bring daylight into what was previously the darkest part of the plan.
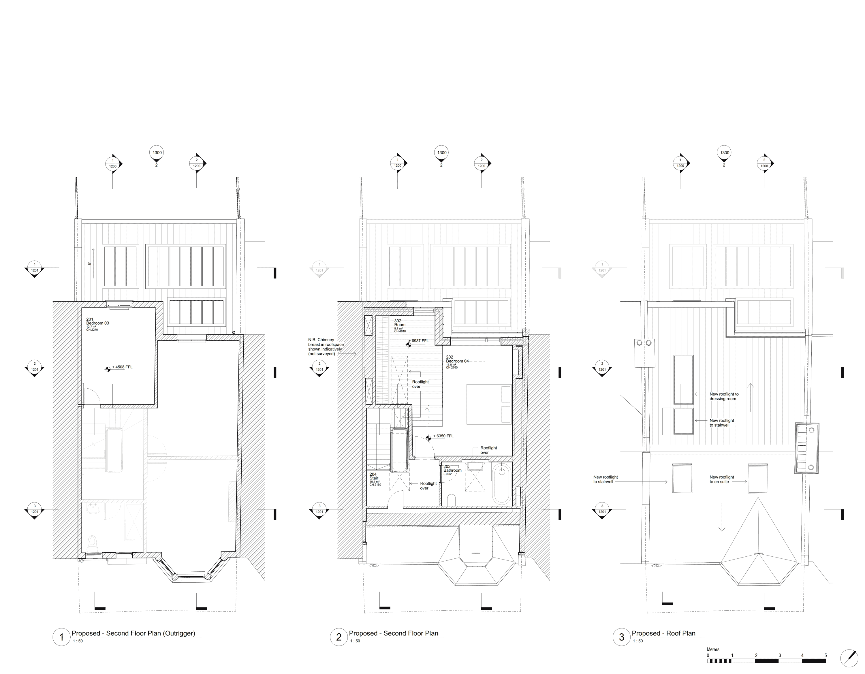
At roof level, the main volume of the rear dormer extension was consented under Permitted Development. We then applied to raise the party walls in matching London stock brick on both sides, resolving the external appearance. Zinc cladding to the dormer and zinc roofing throughout gives a consistent, durable finish across all upstands and drainage.
Thermal upgrades throughout the building, replacement double-glazed windows to the front bay, and pipework and radiator sizing designed around a future air source heat pump complete a scheme built to last. The project extends the useful life of a structurally sound Victorian house, improving how it performs and how it feels to live in, without replacing what doesn't need replacing.
Planning approval was achieved in 2025.





Process
Concept design
Original site condition






Drawings





219.
Pandora Road
Year:
2023-26
CF Team: Francis Fawcett, Oliver Cooke, Laura Davis-Lamarre, Sophie Edwards, Zachary Henderson
Structures: SD Engineers
Sustaniability: Ben Allwood
Costs: Measur




