Thorpedale Road
Location: Finsbury Park, London
, UK
Status: Built
Service: Architecture, Interiors
2023-26

A Victorian terraced house in Islington gains a mansard loft addition, transforming a two-bedroom home into a generous three-bedroom house with a private master suite. The project demonstrates how a carefully considered roof extension can make a substantial spatial and qualitative difference within a tight planning and heritage context.
Read More
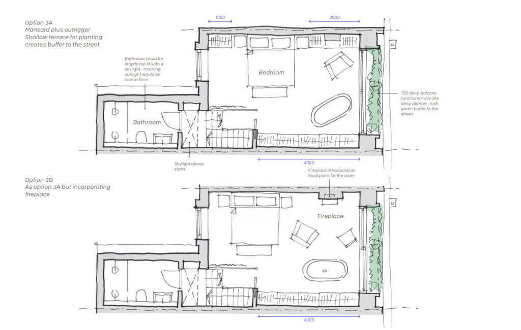
We designed the mansard in mid-grey zinc, tonally close to the natural slate of the street, with timber sash dormers at front and rear sized to match the first-floor windows. That sizing decision drives more than the composition: by matching window to dormer, we eliminate the need for rooflights — no solar gain, no maintenance access, no weak points in the roof. Raised brick party walls with soldier course detailing echo the existing construction, so the addition reads as something the building has always had rather than something placed on top.
The new level is planned around a single, continuous volume. Positioning the bedroom door at the foot of the stair rather than the top allows the entire floor plate to be read as one space. Clay plaster follows the natural curves of the room; Dinesen Douglas fir flooring introduces warmth and grain. A sculpted bathroom wall defines the wet area without closing it off, and a circular skylight above the shower tracks the arc of the wall. Bespoke shutters, joinery, and a stone fireplace introduce material refinement throughout.
The result is a quiet, well-resolved addition — one that earns its place on the roofline and transforms how the house is lived in.






Process
Concept design
Interiors visualisations





Construction photos





212.
Thorpedale Road
Year:
2023-26
CF Team: Oliver Cooke, Alec Crisp, Rory Browne







