2023
Glenarm Road,
Glenarm Road
Glenarm Road
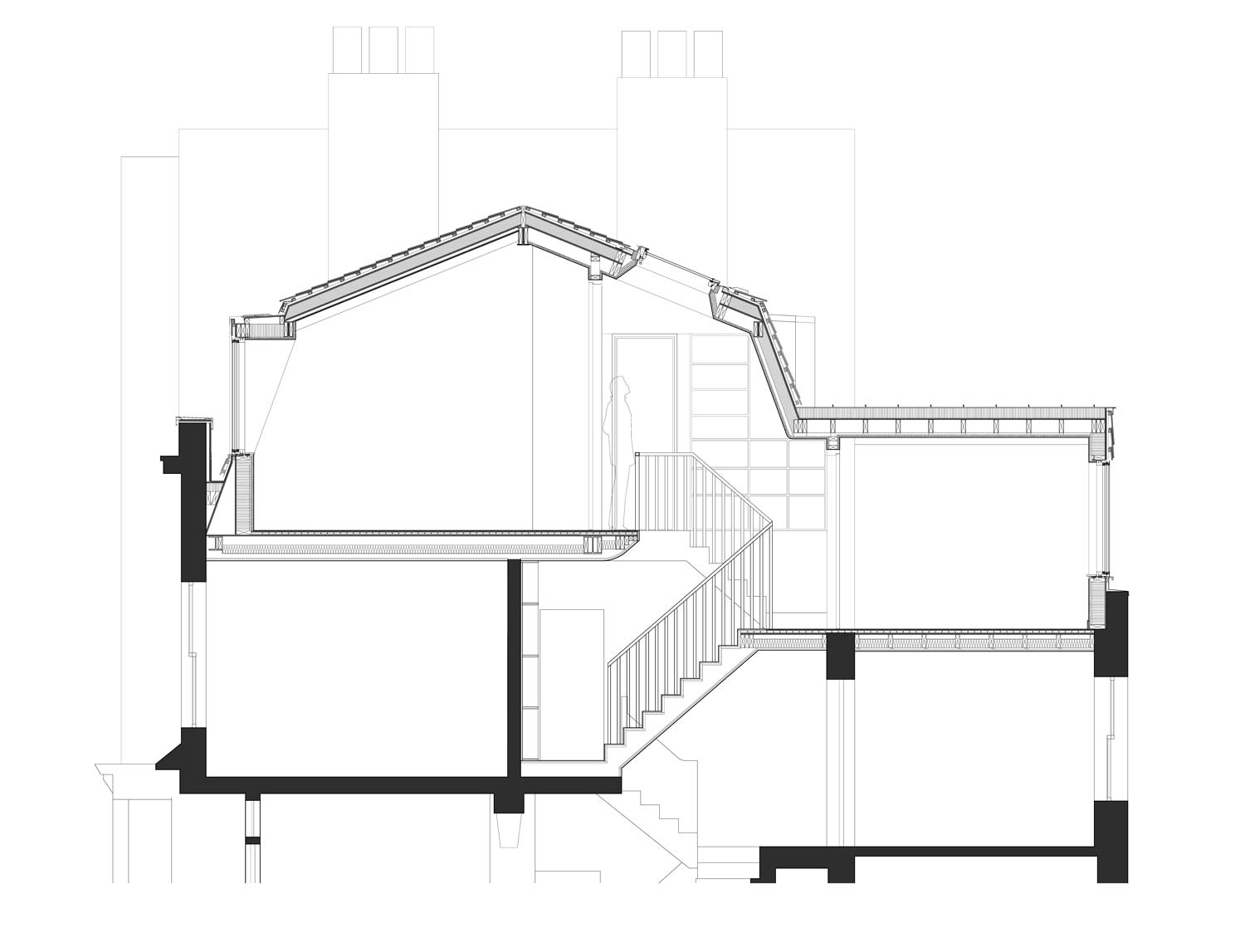
Mansard roof extension in Hackney

Lorem ipsum dolor sit amet, consectetur adipiscing elit. Fusce finibus risus leo, vel tempus orci pretium in. Sed sagittis justo a orci commodo pellentesque. Quisque eleifend, mauris et molestie ultricies, orci felis accumsan purus, sed auctor tortor urna sit amet felis.
Aliquam tempor, purus id feugiat ornare, orci nisl pulvinar mi, id sollicitudin risus purus et leo. Maecenas nec sem ullamcorper, accumsan nisi quis, consequat quam.
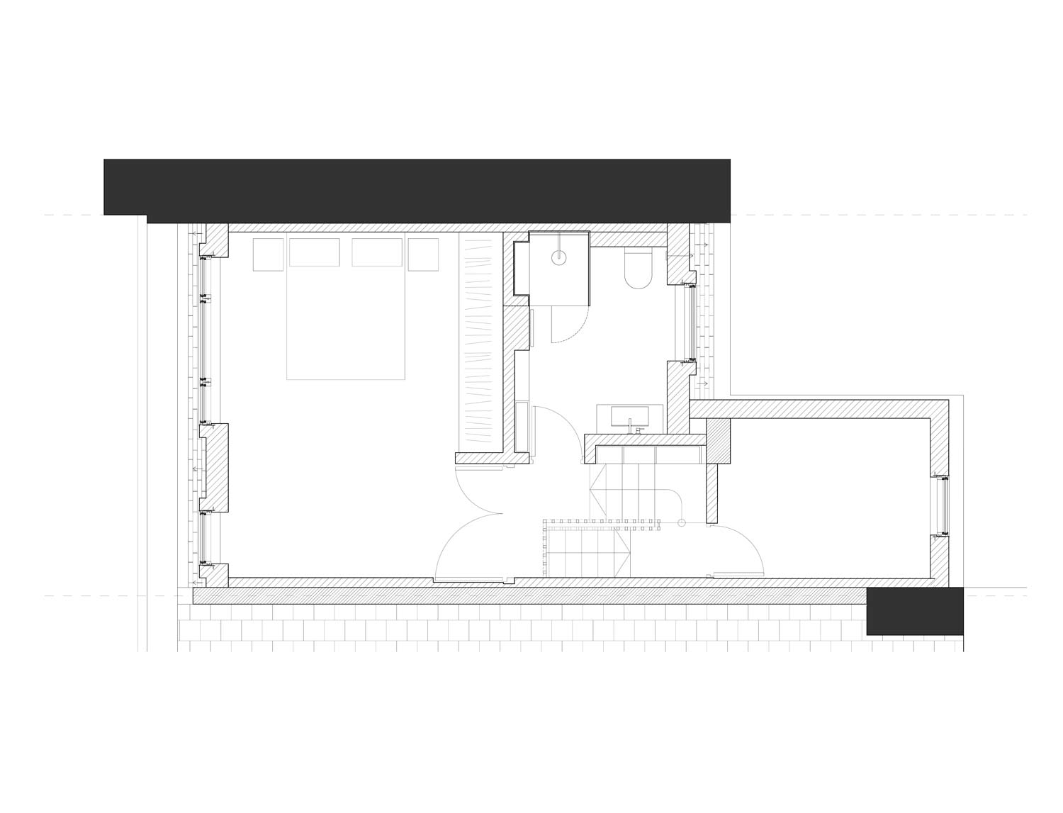
New Mansard Space
Content


New Mansard Space
Content


New Mansard Space
Content


Drawings



Drawings



Drawings



Rear Elevation Studies
Content


Rear Elevation Studies
Content


Rear Elevation Studies
Content


Alternate Option Image Studies
Content



Alternate Option Image Studies
Content



Alternate Option Image Studies
Content



191.
Glenarm Road
Year:
2023
Location: Hackney, London
, UK
Category:
Private

































