Perth Road
Location: Finsbury Park, London
, UK
2021-24


Adding a first floor study extension and reconfiguring the ground floor of a family home in Finsbury Park.
Read More








Process
Concept design
Construction photos









Original site conditions



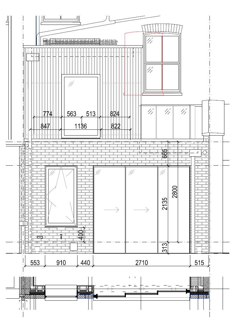
Drawings


185.
Perth Road
Year:
2021-24
CF team: Oliver Cooke, Francis Fawcett; Pauline Caillarec, Zoe Cavendish, Laura Davis-Lamarre (project architect)
Design: 2021-22
Construction: 2023-24



