Tollington Park Road
Location: Finsbury Park, London
, UK
Status: Planning consented
Area: 277m²
2022-26

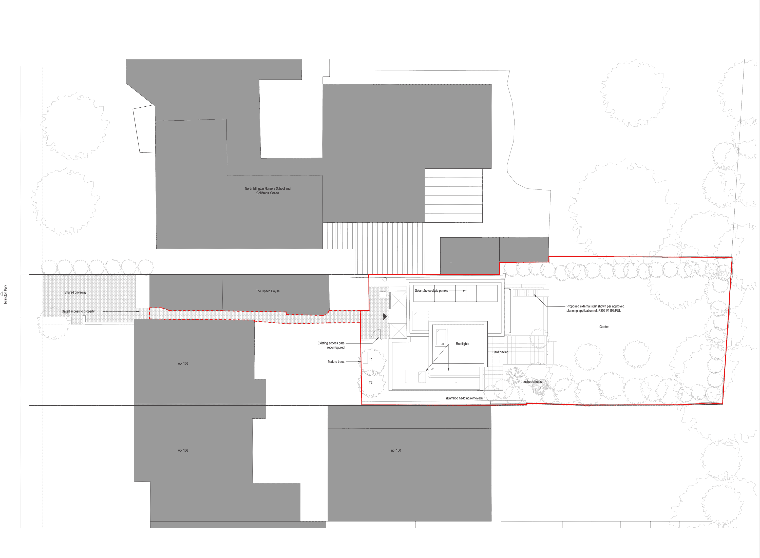
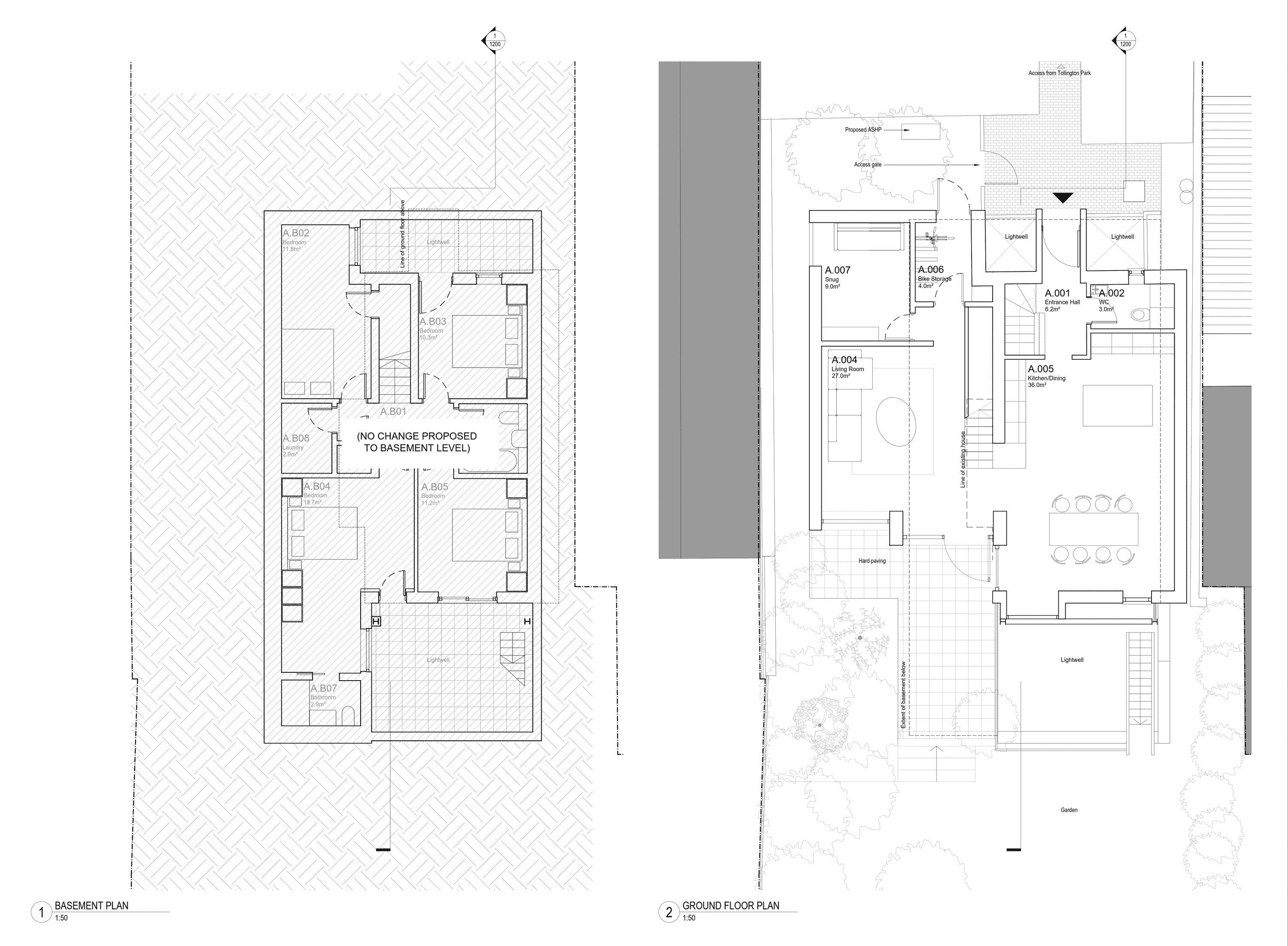
A modern family house in Finsbury Park had an unusual imbalance at its core: four bedrooms buried below ground, served by a modest ground-floor living area that hadn't kept pace with how the family now lives and works. We were asked to correct that, adding space for both everyday life and home working, while making a coherent architectural composition of old and new.
Read More
The existing house, built to high environmental standards in the early 2000s, combines white render with zinc and galvanised steel. Rather than mirror this palette, we've proposed a complementary set of materials — weathered timber cladding and rough stucco — that reads as a distinct addition while holding together with the original.
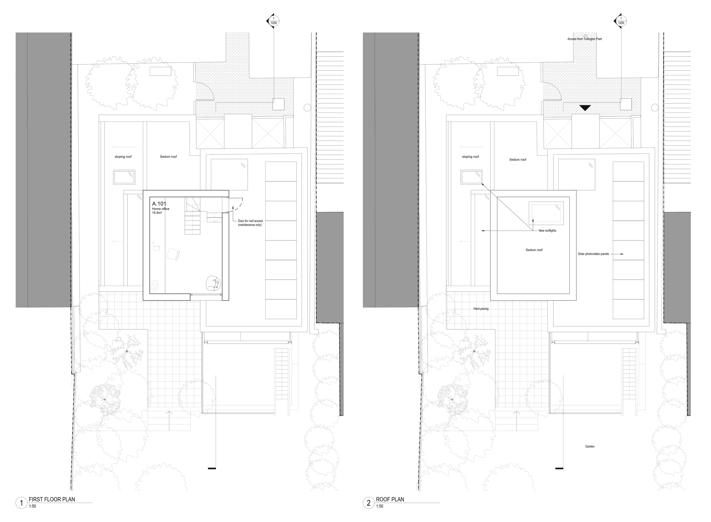
A ground-floor side extension replaces a former terrace, designed to give back what it takes: a generous window seat and large glazed doors re-establish a direct connection to the reformed external terrace. At first-floor level, a new crow's nest volume sits above the roofline to create a dedicated home office, deliberately separate and overlooking the garden. A skylight above the stairwell draws natural light down through both levels.
Structurally, integrating the new stair within the extended volume required careful coordination; storage was incorporated into the stair to maintain a sense of lightness when seen from the living room below.
The result is a house that finally matches its brief: generous, flexible, and built to the same environmental principles as the original, with an air source heat pump completing the transition away from fossil fuels.





Process
Concept design
Existing site photographs







Drawings





180.
Tollington Park Road
Year:
2022-26
Restrictions: Conservation area
CF team: Oliver Cooke, Alec Crisp, Julia Belozertseva, Andy Gibbs
Structures: SD Engineers
Sustainability: Ben Allwood
QS: DGough
Building Control: Assure



