Corbyn Street III
Location: Finsbury Park, London
, UK
Status: Built
Service: Architecture, Interiors
2020-24


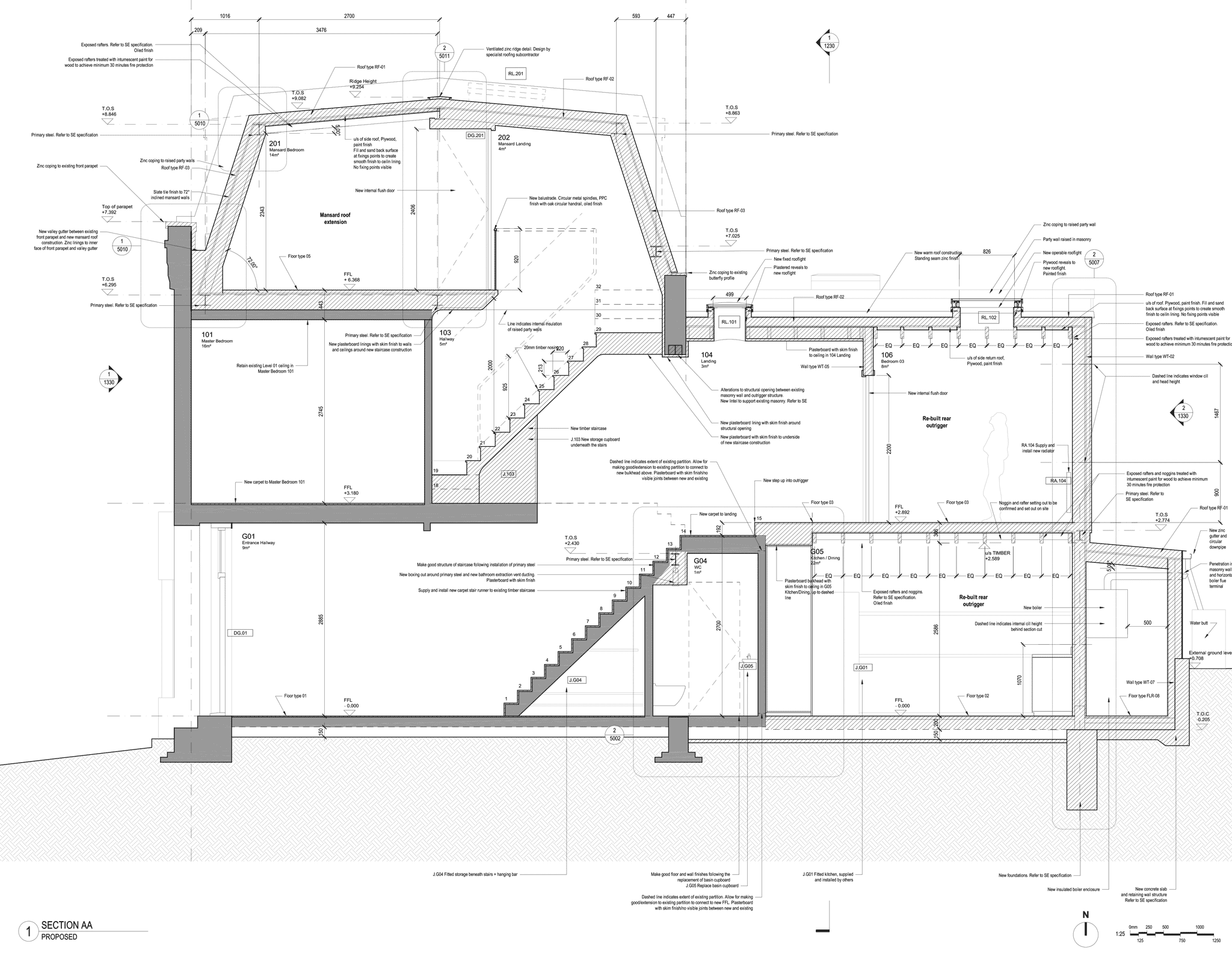
A complete renovation and extension of this Victorian terraced property that involved full re-building of the rear outrigger along with part-depth side-return to extend the footprint, and extending upwards into a mansard loft extension. This has resulted in greatly improved thermal efficiency and an expanded modern family home.
Read More













Process
Concept design
Construction








Original site conditions




Drawings




176.
Corbyn Street III
Year:
2020-24
CF team: Oliver Cooke, Laura Davis-Lamarre, Pauline Calliarec
Structures: Blue Engineering
Building control: Salus
QS: DGough
Photos: Peter Landers











