Archibald Road
Location: Tufnell Park, London
, UK
Status: Built
Area: 225m² / 2420ft²
2020-25

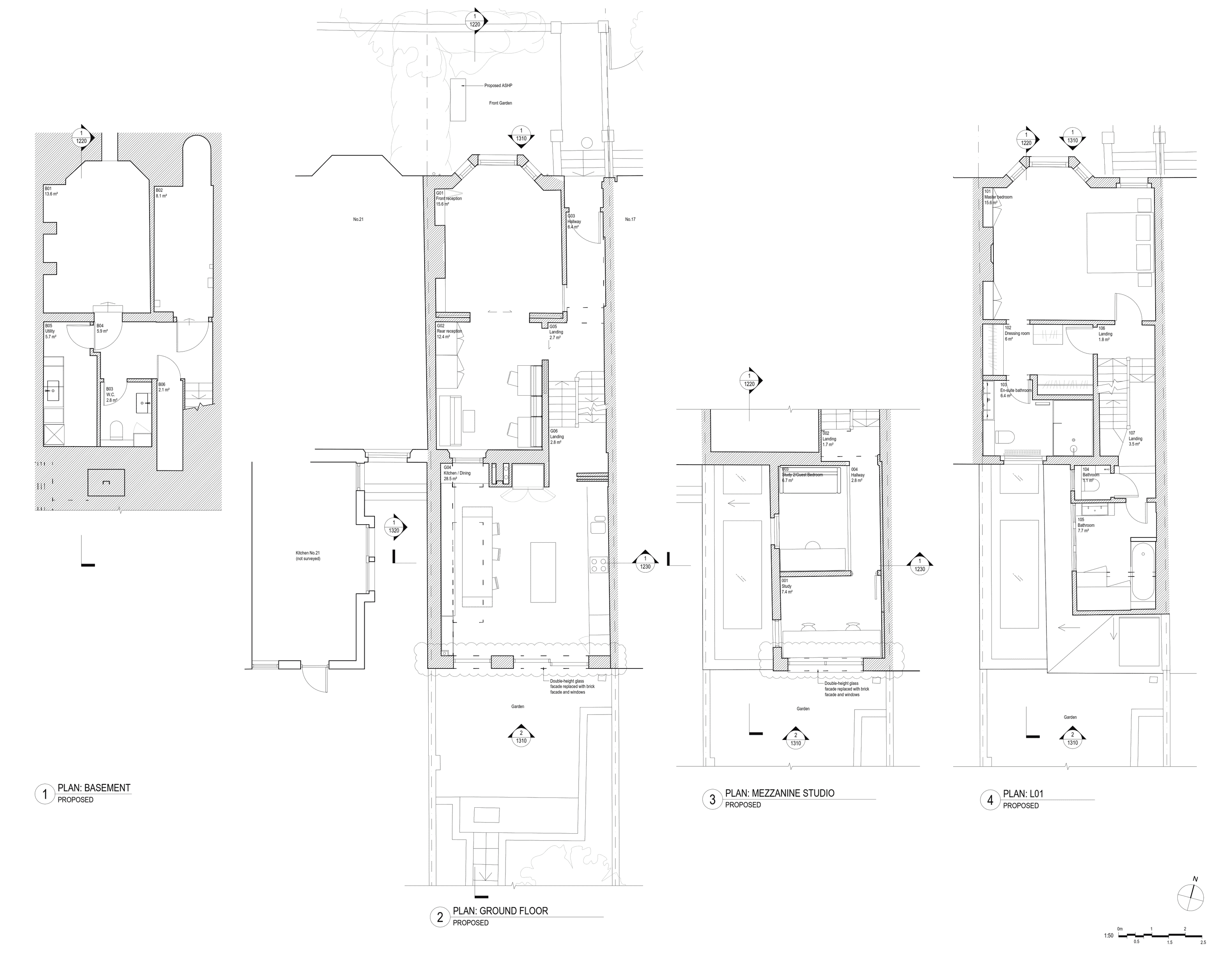
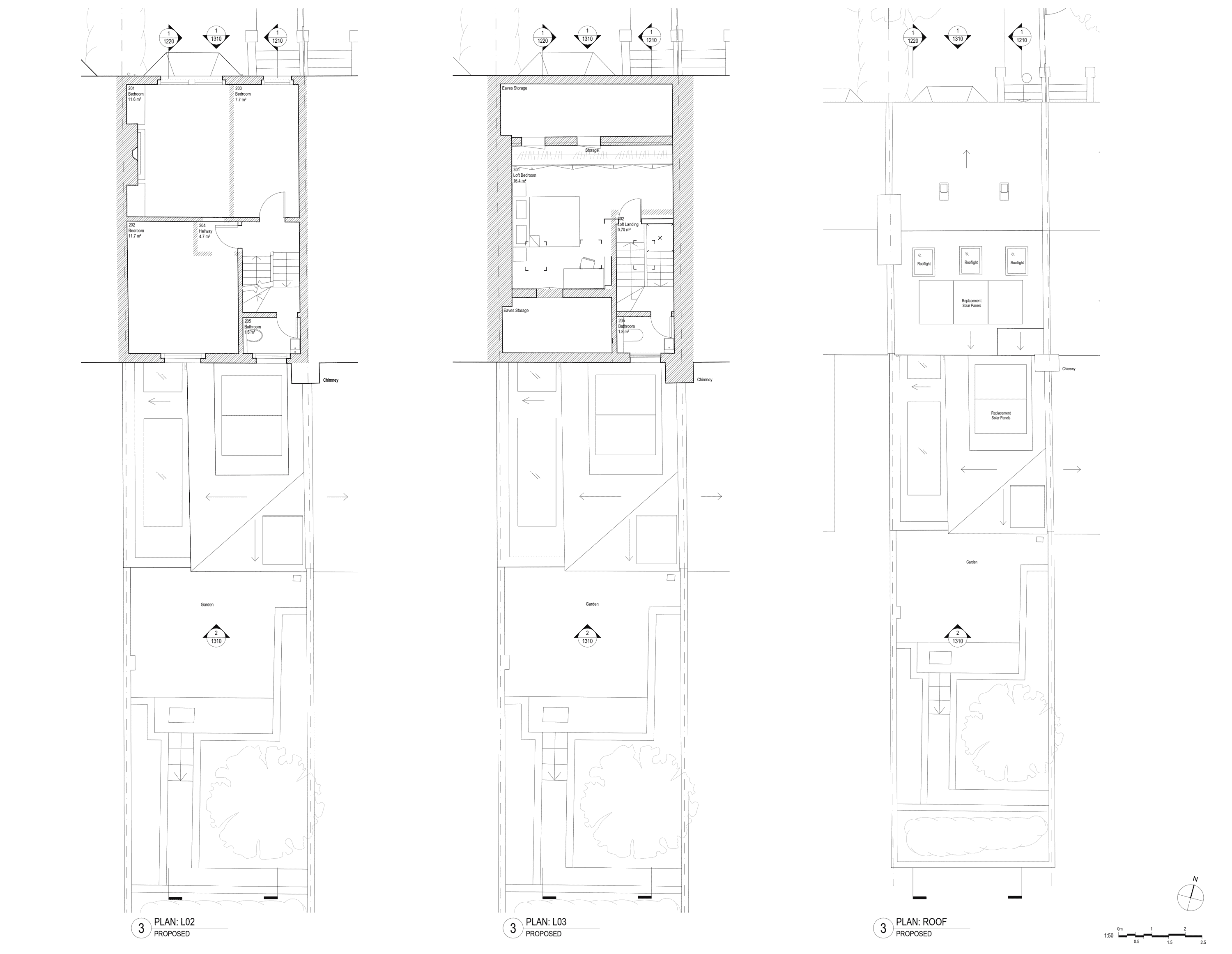
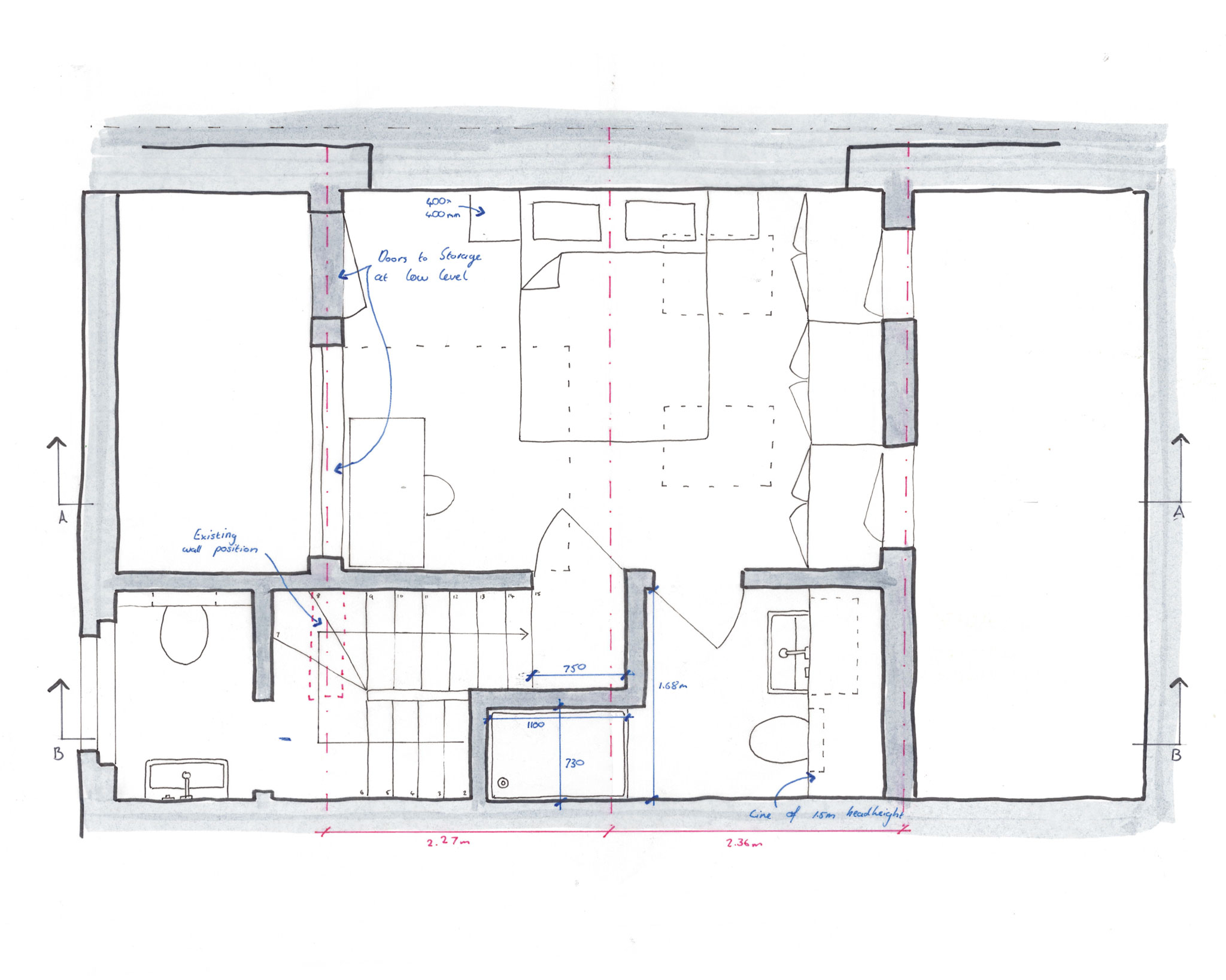
A comprehensive overhaul of a three-storey Victorian terraced house in the heart of the Tufnell Park Conservation Area — one of Islington's most intact examples of 1860s and 70s residential development. The project comprised extensive works throughout, including a loft conversion and rear side-return extension, to transform the house into a generous family home suited to its address.
Read More
Central to the brief was a significant improvement in environmental performance. The existing rear outrigger — clad in an ill-judged double-height glass facade that overheated in summer and lost heat in winter — has been reclad in brick with carefully considered glazed openings, restoring the rhythm of the surrounding terrace while dramatically improving thermal comfort. Elsewhere, single-glazed sash windows have been replaced with double-glazed timber equivalents, matched precisely to the originals in dimension, profile and finish — a requirement of the conservation area's Article 4 direction. An air source heat pump, discreetly positioned behind the front garden hedge, replaces the gas boiler, supported by solar panels on the rear roof slope.



Process
Concept design
Construction






Existing house


Drawings




171.
Archibald Road
Year:
2020-25
Restrictions: Conservation area







