2019-20
Westbourne Park Villas,
Westbourne Park Villas
Westbourne Park Villas
Transformation of an unloved HMO. This project will see the extension and full refurbishment of a four-bedroom villa in Notting Hill, dating from the 1840’s.

Reorganisation and restoration
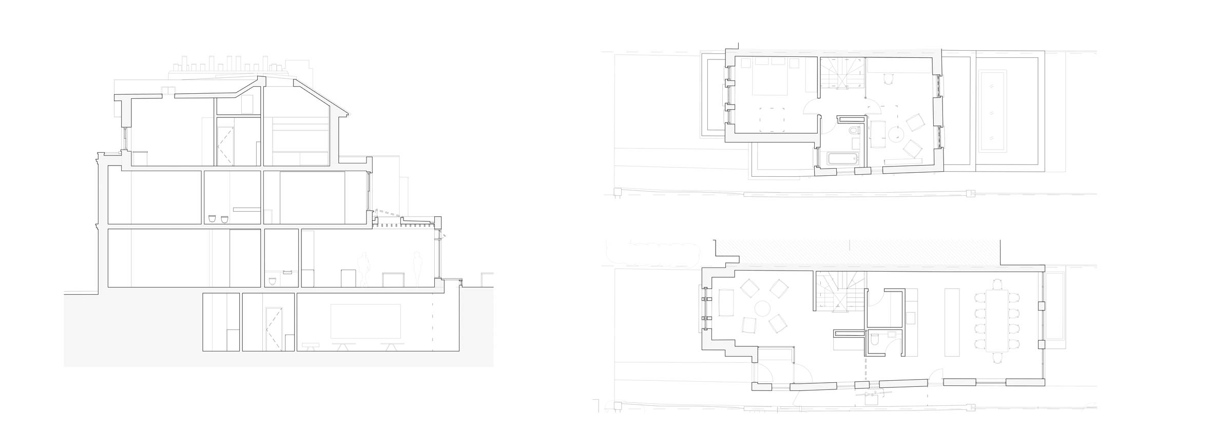
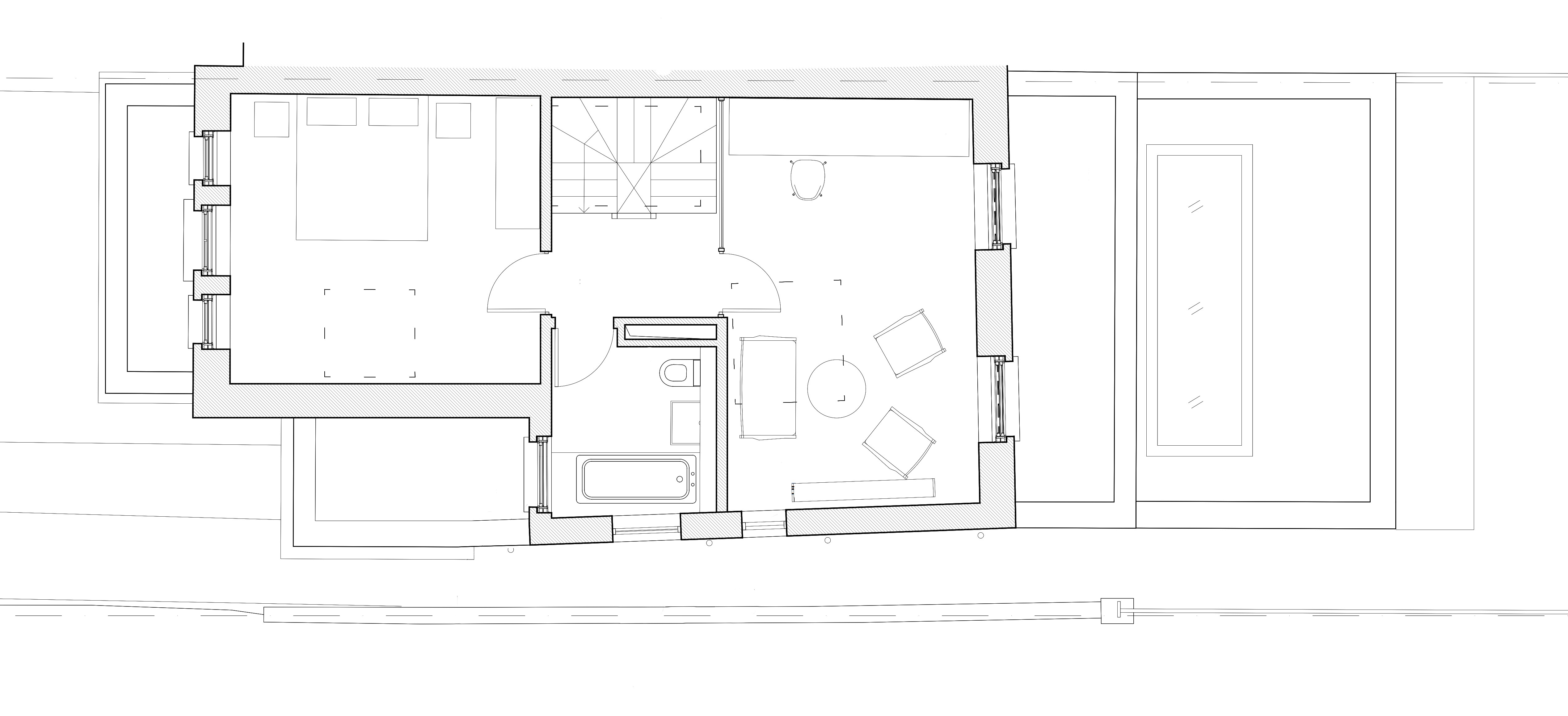
The existing house was previously an HMO and had been chopped into three flats. Our design reorganises and restores the building, creating generous living spaces more in line with the original proportions. It also creates a series of comfortable bedrooms and radically upgrades the low-energy performance.
A major new stepped rear extension unlocks the potential of the house transforming the relationship to the garden – with designs also for a south-shading planted pergola. The top floor becomes a pair of stunning study-studios with new vaulted ceilings and natural lighting.

Reorganisation and restoration
The existing house was previously an HMO and had been chopped into three flats. Our design reorganises and restores the building, creating generous living spaces more in line with the original proportions. It also creates a series of comfortable bedrooms and radically upgrades the low-energy performance.
A major new stepped rear extension unlocks the potential of the house transforming the relationship to the garden – with designs also for a south-shading planted pergola. The top floor becomes a pair of stunning study-studios with new vaulted ceilings and natural lighting.

Reorganisation and restoration
The existing house was previously an HMO and had been chopped into three flats. Our design reorganises and restores the building, creating generous living spaces more in line with the original proportions. It also creates a series of comfortable bedrooms and radically upgrades the low-energy performance.
A major new stepped rear extension unlocks the potential of the house transforming the relationship to the garden – with designs also for a south-shading planted pergola. The top floor becomes a pair of stunning study-studios with new vaulted ceilings and natural lighting.

Relocating the stairs
The house is located with lush gardens on the south side, but a busy street and railway lines on the north. The design reorganises the stair location and layouts so that the living spaces, even those at the front of the house, are connected through to the quieter garden facade. A side elevation to the front draws the house entrance forward and allows useful additional space at first floor.

Relocating the stairs
The house is located with lush gardens on the south side, but a busy street and railway lines on the north. The design reorganises the stair location and layouts so that the living spaces, even those at the front of the house, are connected through to the quieter garden facade. A side elevation to the front draws the house entrance forward and allows useful additional space at first floor.

Relocating the stairs
The house is located with lush gardens on the south side, but a busy street and railway lines on the north. The design reorganises the stair location and layouts so that the living spaces, even those at the front of the house, are connected through to the quieter garden facade. A side elevation to the front draws the house entrance forward and allows useful additional space at first floor.

Environmental upgrade
The project includes a complete environmental upgrade with new windows and internally insulated walls, PV array, MVHR and Air Source Heat Pump. We achieved these changes in the sensitive context of a Westminster conservation area.
Our brief was to take the project up to planning and complete RIBA stage 3. The client is a developer and is now building the project using their in-house team.


Environmental upgrade
The project includes a complete environmental upgrade with new windows and internally insulated walls, PV array, MVHR and Air Source Heat Pump. We achieved these changes in the sensitive context of a Westminster conservation area.
Our brief was to take the project up to planning and complete RIBA stage 3. The client is a developer and is now building the project using their in-house team.


Environmental upgrade
The project includes a complete environmental upgrade with new windows and internally insulated walls, PV array, MVHR and Air Source Heat Pump. We achieved these changes in the sensitive context of a Westminster conservation area.
Our brief was to take the project up to planning and complete RIBA stage 3. The client is a developer and is now building the project using their in-house team.


167.
Westbourne Park Villas
Year:
2019-20
Location: Paddington
, England
Category:
Private
Restrictions: Conservation area


































