2019-22
Corbyn Street,
Corbyn Street
Corbyn Street
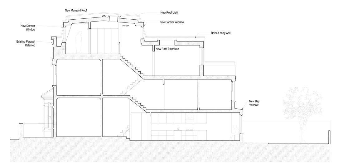
A series of roof and rear extensions, transforming a 3-bedroom house to a 5-bedroom plus study.


Planning success
This project continues our record of consents for roof extensions in Finsbury Park, which until recently were not consented.
The major improvements include turning the property from a 3-bedroom house to a 5-bedroom plus study, with a generous open-plan ground floor kitchen-dining room that opens onto the garden, with a built-in window seat in the new rear bay window.




Planning success
This project continues our record of consents for roof extensions in Finsbury Park, which until recently were not consented.
The major improvements include turning the property from a 3-bedroom house to a 5-bedroom plus study, with a generous open-plan ground floor kitchen-dining room that opens onto the garden, with a built-in window seat in the new rear bay window.




Planning success
This project continues our record of consents for roof extensions in Finsbury Park, which until recently were not consented.
The major improvements include turning the property from a 3-bedroom house to a 5-bedroom plus study, with a generous open-plan ground floor kitchen-dining room that opens onto the garden, with a built-in window seat in the new rear bay window.




New study
Our clients wanted to create rooms at upper levels for working from home, with an emphasis on acoustic separation from the main house.



New study
Our clients wanted to create rooms at upper levels for working from home, with an emphasis on acoustic separation from the main house.



New study
Our clients wanted to create rooms at upper levels for working from home, with an emphasis on acoustic separation from the main house.



Work in progress
The visible side faces of the new roof mansard will be covered in slates, with dormer windows to front and rear. The ground floor extensions facing the garden are unified by being covered with vertical larch boards.


Work in progress
The visible side faces of the new roof mansard will be covered in slates, with dormer windows to front and rear. The ground floor extensions facing the garden are unified by being covered with vertical larch boards.


Work in progress
The visible side faces of the new roof mansard will be covered in slates, with dormer windows to front and rear. The ground floor extensions facing the garden are unified by being covered with vertical larch boards.


Previous Condition

Previous Condition

Previous Condition

165.
Corbyn Street
Year:
2019-22
Location: London
, UK
Category:
Private
Team: Oliver Cooke, Laura Davis-Lamarre, Zoe Cavendish, Pauline Caillarec

































