Cockpit Studios Deptford
2019-24
162
A transformative project to open up Cockpit for the benefit its makers and the local community. Our proposal for the redevelopment of Cockpit’s studio building in Deptford was awarded £2.3 million from the Mayor of London’s Good Growth Fund and the Stride partnership. Completed in summer 2024, the project makes Cockpit more publicly accessible — literally and figuratively — and support it in its mission to support makers.
More text
The need to safeguard and increase the number of affordable studio spaces in London is critical. Our project enables Cockpit to accommodate an additional 21 businesses onsite and to support 26 new jobs. It also creates a new woodworking hub, leather working hub, two new education and community spaces, a pop up café and public garden.
This is a landmark moment in Cockpit’s history, supported and enabled by our work with the organisation from 2019 onwards. The award-winning charity and social enterprise has operated in Deptford since 2002, where it is now home to over 80 makers and microbusinesses, working in more than 20 different crafts.
Our involvement has been from the earliest “what if...” discussions, supporting Cockpit with multiple funding bids, successful planning processes and the engagement of diverse stakeholders.
The existing building was built in the 1960's as a council office building, on the site of a former wharf warehouse. Internal studio spaces with a yard for outdoor working have proven ideal for makers — yet the richness of the activities behind its doors has been largely obscured to the public until now.
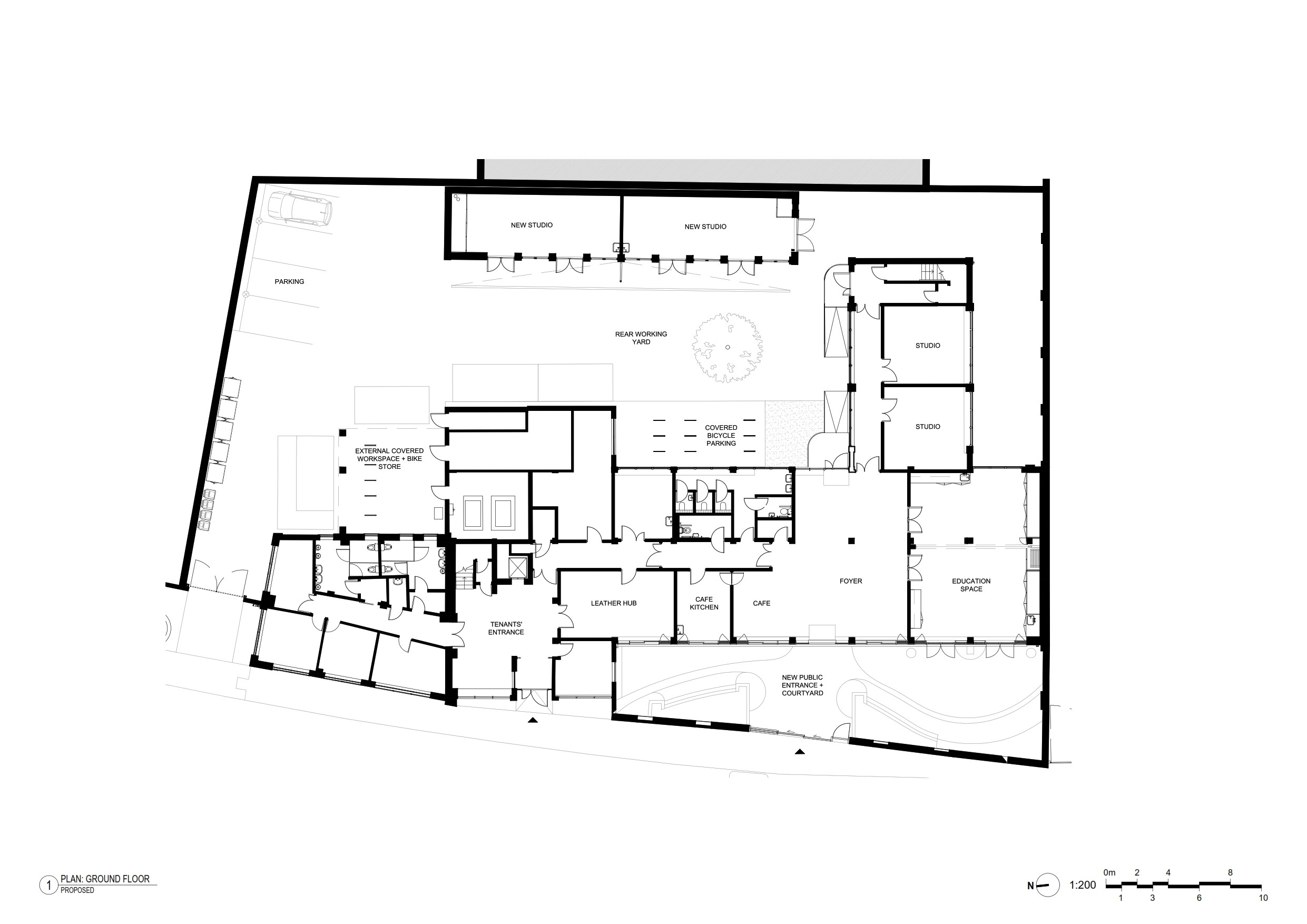
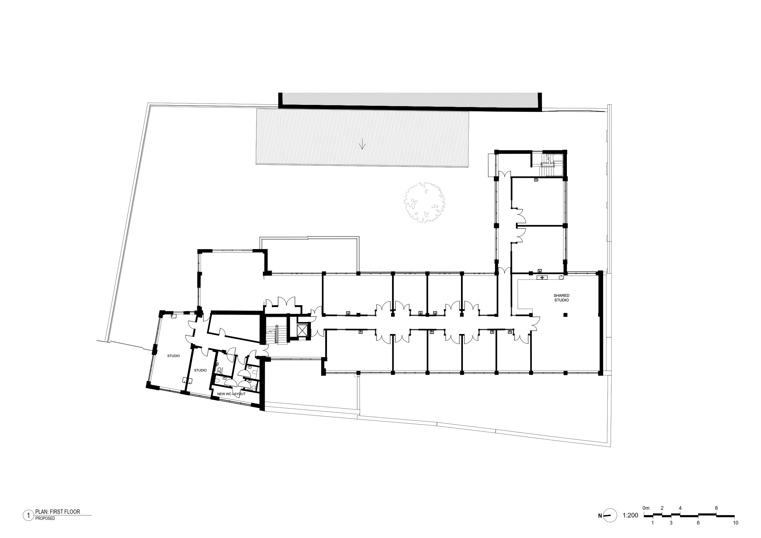
Our project focuses on reorganising the ground floor — inside and out — to unlock underused spaces. New education spaces at ground floor play an important role in making Cockpit more inviting, while meeting growing demand for events and hands-on workshops.
A new entrance to the building punches through the tall front wall, giving Cockpit a new public face and enriching the creative identity of Creekside. The wall opening offers a direct line of sight through the foyer and out to the rear yard and new workshop building.
The new ‘Cockpit Craft Garden’ designed by Sebastian Cox and Immy McAndrew creates a garden oasis in a previously neglected and inaccessible yard. The front wall of the building is reimagined as a new public art work ‘Head, Heart, Hands’ by Cockpit maker Amber Khokhar.
Working with Cockpit’s community of makers has been a great opportunity to better understand which qualities of the original building invite studio use. Ensuring those characteristics don’t get lost in the redevelopment has been a vital part of our process.
The project exemplifies our deep interest in retrofit and secures the future of a building previously threatened with demolition.
The design has been developed for a circular economy by: conserving existing building material fabric; repurposing building materials available onsite; recycling materials that must be removed during construction; specifying new material with high recycled content and low embodied energy.
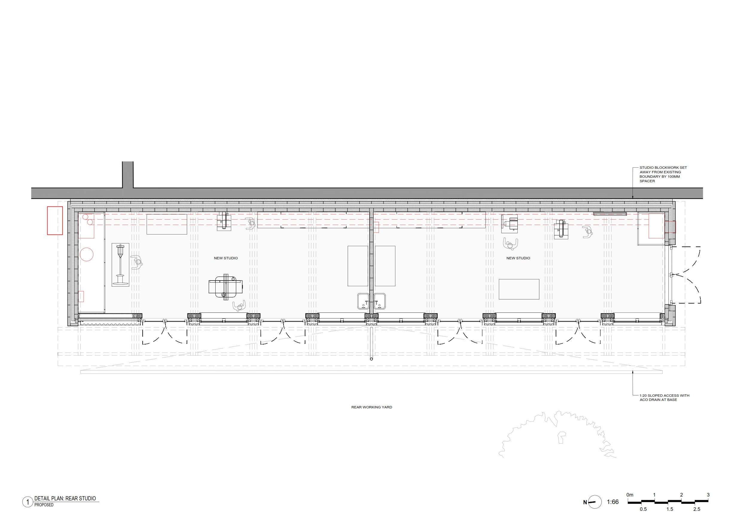
Passive design principles have informed the orientation, form and massing of a new makers’ studio block - unlocking under-utilised space in the backyard. The design achieves exemplary low-energy standards throughout new and refurbished areas – for example with a new façade for the ground floor areas of the existing building, and the construction of a new wood workshop. In collaboration with Max Fordham LLP, we have introduced air source heat pumps for the workshop, several MVHR units and extensive passive solutions for ventilation and shading. As part of the retrofit of existing spaces, radiators have been oversized so that when Cockpit make the switch to heat pumps for the main building heating, these refurbished areas are future proofed.
Planned future phases of work will make continued improvements to the existing building, for example by upgrading facades above ground floor to reduce solar gain and improve thermal performance.
A transformative project to open up Cockpit for the benefit its makers and the local community. Our proposal for the redevelopment of Cockpit’s studio building in Deptford was awarded £2.3 million from the Mayor of London’s Good Growth Fund and the Stride partnership. Completed in summer 2024, the project makes Cockpit more publicly accessible — literally and figuratively — and support it in its mission to support makers.
More text
The need to safeguard and increase the number of affordable studio spaces in London is critical. Our project enables Cockpit to accommodate an additional 21 businesses onsite and to support 26 new jobs. It also creates a new woodworking hub, leather working hub, two new education and community spaces, a pop up café and public garden.
This is a landmark moment in Cockpit’s history, supported and enabled by our work with the organisation from 2019 onwards. The award-winning charity and social enterprise has operated in Deptford since 2002, where it is now home to over 80 makers and microbusinesses, working in more than 20 different crafts.
Our involvement has been from the earliest “what if...” discussions, supporting Cockpit with multiple funding bids, successful planning processes and the engagement of diverse stakeholders.
The existing building was built in the 1960's as a council office building, on the site of a former wharf warehouse. Internal studio spaces with a yard for outdoor working have proven ideal for makers — yet the richness of the activities behind its doors has been largely obscured to the public until now.
Our project focuses on reorganising the ground floor — inside and out — to unlock underused spaces. New education spaces at ground floor play an important role in making Cockpit more inviting, while meeting growing demand for events and hands-on workshops.
A new entrance to the building punches through the tall front wall, giving Cockpit a new public face and enriching the creative identity of Creekside. The wall opening offers a direct line of sight through the foyer and out to the rear yard and new workshop building.
The new ‘Cockpit Craft Garden’ designed by Sebastian Cox and Immy McAndrew creates a garden oasis in a previously neglected and inaccessible yard. The front wall of the building is reimagined as a new public art work ‘Head, Heart, Hands’ by Cockpit maker Amber Khokhar.
Working with Cockpit’s community of makers has been a great opportunity to better understand which qualities of the original building invite studio use. Ensuring those characteristics don’t get lost in the redevelopment has been a vital part of our process.
The project exemplifies our deep interest in retrofit and secures the future of a building previously threatened with demolition.
The design has been developed for a circular economy by: conserving existing building material fabric; repurposing building materials available onsite; recycling materials that must be removed during construction; specifying new material with high recycled content and low embodied energy.
Passive design principles have informed the orientation, form and massing of a new makers’ studio block - unlocking under-utilised space in the backyard. The design achieves exemplary low-energy standards throughout new and refurbished areas – for example with a new façade for the ground floor areas of the existing building, and the construction of a new wood workshop. In collaboration with Max Fordham LLP, we have introduced air source heat pumps for the workshop, several MVHR units and extensive passive solutions for ventilation and shading. As part of the retrofit of existing spaces, radiators have been oversized so that when Cockpit make the switch to heat pumps for the main building heating, these refurbished areas are future proofed.
Planned future phases of work will make continued improvements to the existing building, for example by upgrading facades above ground floor to reduce solar gain and improve thermal performance.
A transformative project to open up Cockpit for the benefit its makers and the local community. Our proposal for the redevelopment of Cockpit’s studio building in Deptford was awarded £2.3 million from the Mayor of London’s Good Growth Fund and the Stride partnership. Completed in summer 2024, the project makes Cockpit more publicly accessible — literally and figuratively — and support it in its mission to support makers.
More text
The need to safeguard and increase the number of affordable studio spaces in London is critical. Our project enables Cockpit to accommodate an additional 21 businesses onsite and to support 26 new jobs. It also creates a new woodworking hub, leather working hub, two new education and community spaces, a pop up café and public garden.
This is a landmark moment in Cockpit’s history, supported and enabled by our work with the organisation from 2019 onwards. The award-winning charity and social enterprise has operated in Deptford since 2002, where it is now home to over 80 makers and microbusinesses, working in more than 20 different crafts.
Our involvement has been from the earliest “what if...” discussions, supporting Cockpit with multiple funding bids, successful planning processes and the engagement of diverse stakeholders.
The existing building was built in the 1960's as a council office building, on the site of a former wharf warehouse. Internal studio spaces with a yard for outdoor working have proven ideal for makers — yet the richness of the activities behind its doors has been largely obscured to the public until now.
Our project focuses on reorganising the ground floor — inside and out — to unlock underused spaces. New education spaces at ground floor play an important role in making Cockpit more inviting, while meeting growing demand for events and hands-on workshops.
A new entrance to the building punches through the tall front wall, giving Cockpit a new public face and enriching the creative identity of Creekside. The wall opening offers a direct line of sight through the foyer and out to the rear yard and new workshop building.
The new ‘Cockpit Craft Garden’ designed by Sebastian Cox and Immy McAndrew creates a garden oasis in a previously neglected and inaccessible yard. The front wall of the building is reimagined as a new public art work ‘Head, Heart, Hands’ by Cockpit maker Amber Khokhar.
Working with Cockpit’s community of makers has been a great opportunity to better understand which qualities of the original building invite studio use. Ensuring those characteristics don’t get lost in the redevelopment has been a vital part of our process.
The project exemplifies our deep interest in retrofit and secures the future of a building previously threatened with demolition.
The design has been developed for a circular economy by: conserving existing building material fabric; repurposing building materials available onsite; recycling materials that must be removed during construction; specifying new material with high recycled content and low embodied energy.
Passive design principles have informed the orientation, form and massing of a new makers’ studio block - unlocking under-utilised space in the backyard. The design achieves exemplary low-energy standards throughout new and refurbished areas – for example with a new façade for the ground floor areas of the existing building, and the construction of a new wood workshop. In collaboration with Max Fordham LLP, we have introduced air source heat pumps for the workshop, several MVHR units and extensive passive solutions for ventilation and shading. As part of the retrofit of existing spaces, radiators have been oversized so that when Cockpit make the switch to heat pumps for the main building heating, these refurbished areas are future proofed.
Planned future phases of work will make continued improvements to the existing building, for example by upgrading facades above ground floor to reduce solar gain and improve thermal performance.
A transformative project to open up Cockpit for the benefit its makers and the local community. Our proposal for the redevelopment of Cockpit’s studio building in Deptford was awarded £2.3 million from the Mayor of London’s Good Growth Fund and the Stride partnership. Completed in summer 2024, the project makes Cockpit more publicly accessible — literally and figuratively — and support it in its mission to support makers.
More text
The need to safeguard and increase the number of affordable studio spaces in London is critical. Our project enables Cockpit to accommodate an additional 21 businesses onsite and to support 26 new jobs. It also creates a new woodworking hub, leather working hub, two new education and community spaces, a pop up café and public garden.
This is a landmark moment in Cockpit’s history, supported and enabled by our work with the organisation from 2019 onwards. The award-winning charity and social enterprise has operated in Deptford since 2002, where it is now home to over 80 makers and microbusinesses, working in more than 20 different crafts.
Our involvement has been from the earliest “what if...” discussions, supporting Cockpit with multiple funding bids, successful planning processes and the engagement of diverse stakeholders.
The existing building was built in the 1960's as a council office building, on the site of a former wharf warehouse. Internal studio spaces with a yard for outdoor working have proven ideal for makers — yet the richness of the activities behind its doors has been largely obscured to the public until now.
Our project focuses on reorganising the ground floor — inside and out — to unlock underused spaces. New education spaces at ground floor play an important role in making Cockpit more inviting, while meeting growing demand for events and hands-on workshops.
A new entrance to the building punches through the tall front wall, giving Cockpit a new public face and enriching the creative identity of Creekside. The wall opening offers a direct line of sight through the foyer and out to the rear yard and new workshop building.
The new ‘Cockpit Craft Garden’ designed by Sebastian Cox and Immy McAndrew creates a garden oasis in a previously neglected and inaccessible yard. The front wall of the building is reimagined as a new public art work ‘Head, Heart, Hands’ by Cockpit maker Amber Khokhar.
Working with Cockpit’s community of makers has been a great opportunity to better understand which qualities of the original building invite studio use. Ensuring those characteristics don’t get lost in the redevelopment has been a vital part of our process.
The project exemplifies our deep interest in retrofit and secures the future of a building previously threatened with demolition.
The design has been developed for a circular economy by: conserving existing building material fabric; repurposing building materials available onsite; recycling materials that must be removed during construction; specifying new material with high recycled content and low embodied energy.
Passive design principles have informed the orientation, form and massing of a new makers’ studio block - unlocking under-utilised space in the backyard. The design achieves exemplary low-energy standards throughout new and refurbished areas – for example with a new façade for the ground floor areas of the existing building, and the construction of a new wood workshop. In collaboration with Max Fordham LLP, we have introduced air source heat pumps for the workshop, several MVHR units and extensive passive solutions for ventilation and shading. As part of the retrofit of existing spaces, radiators have been oversized so that when Cockpit make the switch to heat pumps for the main building heating, these refurbished areas are future proofed.
Planned future phases of work will make continued improvements to the existing building, for example by upgrading facades above ground floor to reduce solar gain and improve thermal performance.
A transformative project to open up Cockpit for the benefit its makers and the local community. Our proposal for the redevelopment of Cockpit’s studio building in Deptford was awarded £2.3 million from the Mayor of London’s Good Growth Fund and the Stride partnership. Completed in summer 2024, the project makes Cockpit more publicly accessible — literally and figuratively — and support it in its mission to support makers.
More text
The need to safeguard and increase the number of affordable studio spaces in London is critical. Our project enables Cockpit to accommodate an additional 21 businesses onsite and to support 26 new jobs. It also creates a new woodworking hub, leather working hub, two new education and community spaces, a pop up café and public garden.
This is a landmark moment in Cockpit’s history, supported and enabled by our work with the organisation from 2019 onwards. The award-winning charity and social enterprise has operated in Deptford since 2002, where it is now home to over 80 makers and microbusinesses, working in more than 20 different crafts.
Our involvement has been from the earliest “what if...” discussions, supporting Cockpit with multiple funding bids, successful planning processes and the engagement of diverse stakeholders.
The existing building was built in the 1960's as a council office building, on the site of a former wharf warehouse. Internal studio spaces with a yard for outdoor working have proven ideal for makers — yet the richness of the activities behind its doors has been largely obscured to the public until now.
Our project focuses on reorganising the ground floor — inside and out — to unlock underused spaces. New education spaces at ground floor play an important role in making Cockpit more inviting, while meeting growing demand for events and hands-on workshops.
A new entrance to the building punches through the tall front wall, giving Cockpit a new public face and enriching the creative identity of Creekside. The wall opening offers a direct line of sight through the foyer and out to the rear yard and new workshop building.
The new ‘Cockpit Craft Garden’ designed by Sebastian Cox and Immy McAndrew creates a garden oasis in a previously neglected and inaccessible yard. The front wall of the building is reimagined as a new public art work ‘Head, Heart, Hands’ by Cockpit maker Amber Khokhar.
Working with Cockpit’s community of makers has been a great opportunity to better understand which qualities of the original building invite studio use. Ensuring those characteristics don’t get lost in the redevelopment has been a vital part of our process.
The project exemplifies our deep interest in retrofit and secures the future of a building previously threatened with demolition.
The design has been developed for a circular economy by: conserving existing building material fabric; repurposing building materials available onsite; recycling materials that must be removed during construction; specifying new material with high recycled content and low embodied energy.
Passive design principles have informed the orientation, form and massing of a new makers’ studio block - unlocking under-utilised space in the backyard. The design achieves exemplary low-energy standards throughout new and refurbished areas – for example with a new façade for the ground floor areas of the existing building, and the construction of a new wood workshop. In collaboration with Max Fordham LLP, we have introduced air source heat pumps for the workshop, several MVHR units and extensive passive solutions for ventilation and shading. As part of the retrofit of existing spaces, radiators have been oversized so that when Cockpit make the switch to heat pumps for the main building heating, these refurbished areas are future proofed.
Planned future phases of work will make continued improvements to the existing building, for example by upgrading facades above ground floor to reduce solar gain and improve thermal performance.














































































Awards & Press
New London Architecture (NLA) Awards 2025 — Winner, Retrofit category link
"The judges were impressed with how this project opens up the world of making to the public, celebrating visibility and access. Reuse was central to the design, with the building remaining open throughout refurbishment. They praised the way it transforms the street through community engagement, turning leftover spaces into beautifully designed, welcoming places."
RIBA London Awards 2025 — Shortlisted
RIBA Retrofit & Reuse Awards 2025 — Highly Commended, Adaptive Reuse category link
Civic Trust Awards 2025 — Shortlisted
The Pineapples Awards 2026 — Shortlisted, Cultural Retrofit category link
Wallpaper, 24 June 2024: Cockpit Deptford is a new home for the arts and crafts in south London (Emma O'Kelly) link
The Observer, 14 July 2024: Cockpit Deptford review – the subtle art of making do (Rowan Moore) link
Architect's Journal, 23 August 2024: Making the Most of What You Have Got — Building Study (Ellie Duffy) link
FX, 10 September 2024: Brief Encounters (Veronica Simpson) link
Architecture Today, October 2024: Cockpit Deptford link
Architect's Journal, 19 June 2022: RetroFirst Stories: Cooke Fawcett plans new life for craft studios in 60s block (Richard Waite) link
Process








































Images taken during construction by Isabelle Young
























Observations of the original site and building condition: an unwelcoming wall to the street with an inaccessible, unused front yard





















Drawings
























162.
Cockpit Studios Deptford
Year:
2019-24
Location: Lewisham, London
, UK
Category:
Public
, Workspace
, Arts
Project: 2019-22; Construction: 2023
Team: Oliver Cooke, Francis Fawcett; Eden Day, Andy Gibbs (project architect), Emilia Johnson
Client: Cockpit
MEP design: Max Fordham LLP
Structural design: Momentum
Cost consultant: G&T
Planning consultant: Planning Lab
Photos: Max Creasy, Isabelle Young, Peter Landers
Read more about how we work on arts projects.