Lower Road
2019-21
161
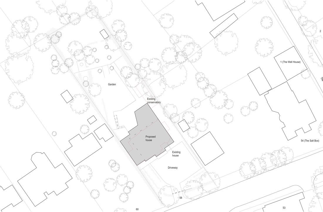
A new, highly sustainable, multi-generational house within the historic village of Fetcham, Surrey. Adjacent to both a Listed building and the boundary of Fetcham Conservation Area, our design for the two-storey dwelling was successful in achieving Planning permission.
More text
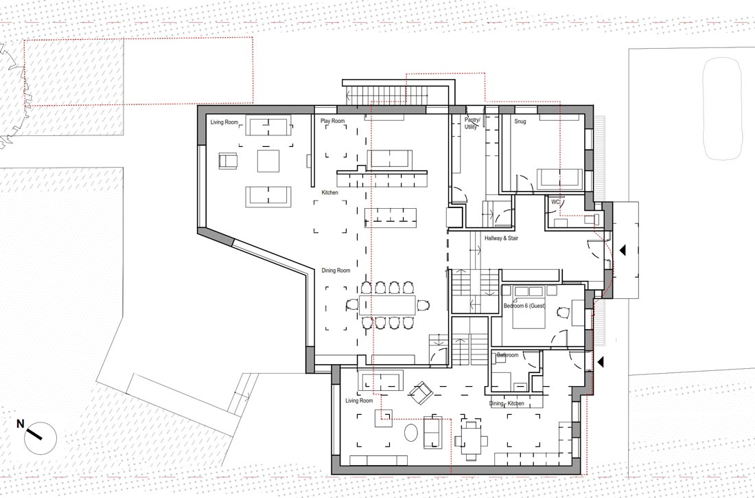
In replacing a bungalow dating from 1946, the new seven bedroom house is able to achieve an increase in the internal space of more than 260%. It is effectively two houses in one – a main 5-bedroom family house, with a two-bedroom grandparents’ wing. Each has independent front doors and share a generous garden terrace leading onto a landscaped garden. There are specific locations for internal connections, and both access a shared basement for utilities, gym and storage.
A heritage impact assessment, ecological report, arboriculturist survey and bat survey were all essential to understanding the site and gaining the support of Mole Valley district council and planning authority.
The stepped rear plan is to take best advantage of the afternoon and evening sun as it comes round to the north-west oriented site.
Low-energy design principles include a low carbon ground source heat pump, an MVHR ventilation system, and thermal efficiency through highly insulated walls and roof, and triple-glazed windows. The use of local materials – warm buff brick, a stone plinth band, and slate tiles – sit well in a neighbourhood of mixed suburban house styles and ages.
A new, highly sustainable, multi-generational house within the historic village of Fetcham, Surrey. Adjacent to both a Listed building and the boundary of Fetcham Conservation Area, our design for the two-storey dwelling was successful in achieving Planning permission.
More text
In replacing a bungalow dating from 1946, the new seven bedroom house is able to achieve an increase in the internal space of more than 260%. It is effectively two houses in one – a main 5-bedroom family house, with a two-bedroom grandparents’ wing. Each has independent front doors and share a generous garden terrace leading onto a landscaped garden. There are specific locations for internal connections, and both access a shared basement for utilities, gym and storage.
A heritage impact assessment, ecological report, arboriculturist survey and bat survey were all essential to understanding the site and gaining the support of Mole Valley district council and planning authority.
The stepped rear plan is to take best advantage of the afternoon and evening sun as it comes round to the north-west oriented site.
Low-energy design principles include a low carbon ground source heat pump, an MVHR ventilation system, and thermal efficiency through highly insulated walls and roof, and triple-glazed windows. The use of local materials – warm buff brick, a stone plinth band, and slate tiles – sit well in a neighbourhood of mixed suburban house styles and ages.
A new, highly sustainable, multi-generational house within the historic village of Fetcham, Surrey. Adjacent to both a Listed building and the boundary of Fetcham Conservation Area, our design for the two-storey dwelling was successful in achieving Planning permission.
More text
In replacing a bungalow dating from 1946, the new seven bedroom house is able to achieve an increase in the internal space of more than 260%. It is effectively two houses in one – a main 5-bedroom family house, with a two-bedroom grandparents’ wing. Each has independent front doors and share a generous garden terrace leading onto a landscaped garden. There are specific locations for internal connections, and both access a shared basement for utilities, gym and storage.
A heritage impact assessment, ecological report, arboriculturist survey and bat survey were all essential to understanding the site and gaining the support of Mole Valley district council and planning authority.
The stepped rear plan is to take best advantage of the afternoon and evening sun as it comes round to the north-west oriented site.
Low-energy design principles include a low carbon ground source heat pump, an MVHR ventilation system, and thermal efficiency through highly insulated walls and roof, and triple-glazed windows. The use of local materials – warm buff brick, a stone plinth band, and slate tiles – sit well in a neighbourhood of mixed suburban house styles and ages.
A new, highly sustainable, multi-generational house within the historic village of Fetcham, Surrey. Adjacent to both a Listed building and the boundary of Fetcham Conservation Area, our design for the two-storey dwelling was successful in achieving Planning permission.
More text
In replacing a bungalow dating from 1946, the new seven bedroom house is able to achieve an increase in the internal space of more than 260%. It is effectively two houses in one – a main 5-bedroom family house, with a two-bedroom grandparents’ wing. Each has independent front doors and share a generous garden terrace leading onto a landscaped garden. There are specific locations for internal connections, and both access a shared basement for utilities, gym and storage.
A heritage impact assessment, ecological report, arboriculturist survey and bat survey were all essential to understanding the site and gaining the support of Mole Valley district council and planning authority.
The stepped rear plan is to take best advantage of the afternoon and evening sun as it comes round to the north-west oriented site.
Low-energy design principles include a low carbon ground source heat pump, an MVHR ventilation system, and thermal efficiency through highly insulated walls and roof, and triple-glazed windows. The use of local materials – warm buff brick, a stone plinth band, and slate tiles – sit well in a neighbourhood of mixed suburban house styles and ages.
A new, highly sustainable, multi-generational house within the historic village of Fetcham, Surrey. Adjacent to both a Listed building and the boundary of Fetcham Conservation Area, our design for the two-storey dwelling was successful in achieving Planning permission.
More text
In replacing a bungalow dating from 1946, the new seven bedroom house is able to achieve an increase in the internal space of more than 260%. It is effectively two houses in one – a main 5-bedroom family house, with a two-bedroom grandparents’ wing. Each has independent front doors and share a generous garden terrace leading onto a landscaped garden. There are specific locations for internal connections, and both access a shared basement for utilities, gym and storage.
A heritage impact assessment, ecological report, arboriculturist survey and bat survey were all essential to understanding the site and gaining the support of Mole Valley district council and planning authority.
The stepped rear plan is to take best advantage of the afternoon and evening sun as it comes round to the north-west oriented site.
Low-energy design principles include a low carbon ground source heat pump, an MVHR ventilation system, and thermal efficiency through highly insulated walls and roof, and triple-glazed windows. The use of local materials – warm buff brick, a stone plinth band, and slate tiles – sit well in a neighbourhood of mixed suburban house styles and ages.

























Process








Drawings












161.
Lower Road
Year:
2019-21
Location: Fetcham, Surrey
, UK
Category:
Private