Archer's Mark
2018
147
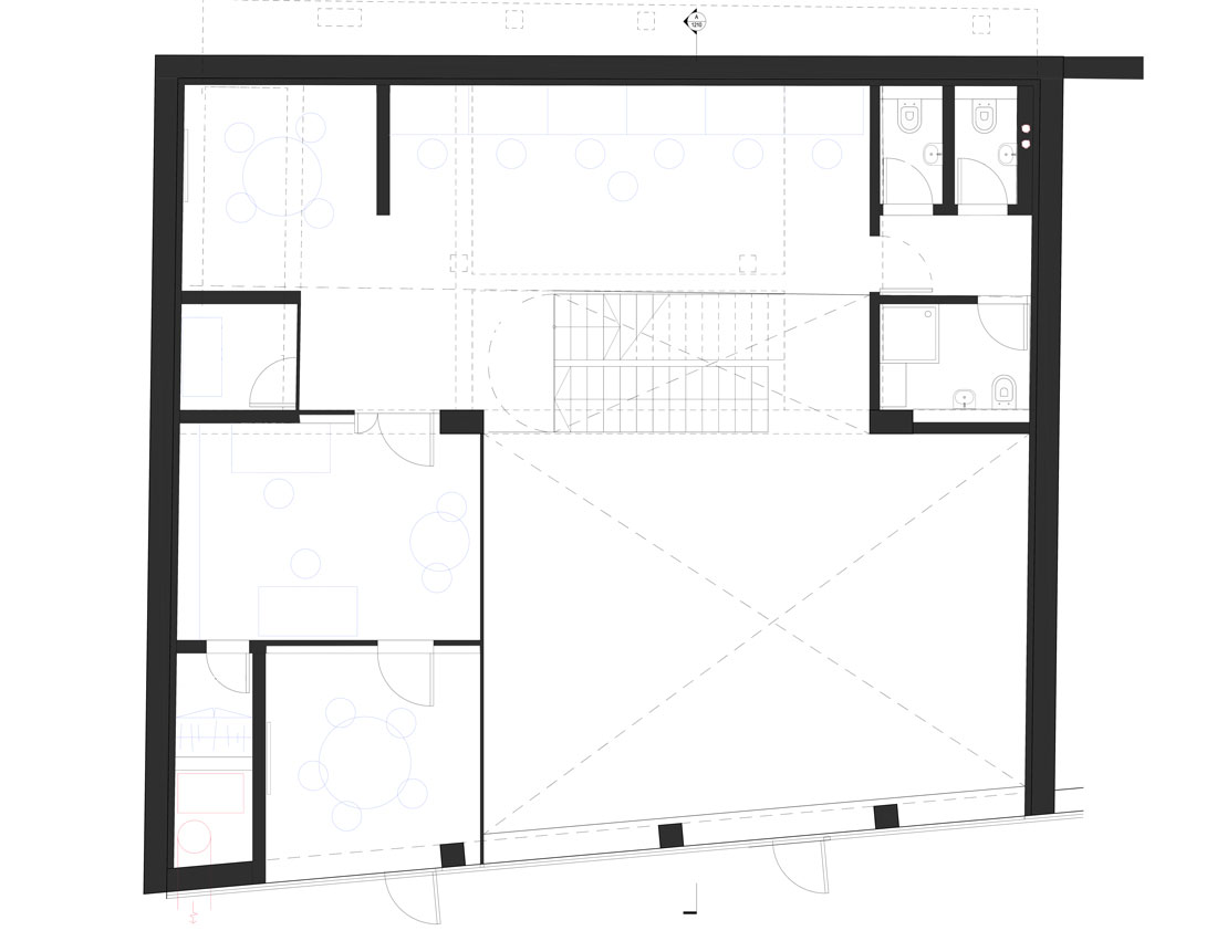
A new office fitout for a video production company, with editing suites along with spaces for desk work, collaboration and socialising. The unusual layout of the 3-floor shell space, within a new development near London Fields, includes a dramatic double height space.
More text
Plans for the fit-out include connecting all levels with a new blackened steel staircase that descends from the smaller ground floor entrance and office space, down to the edit suites on lowest floor.
A new office fitout for a video production company, with editing suites along with spaces for desk work, collaboration and socialising. The unusual layout of the 3-floor shell space, within a new development near London Fields, includes a dramatic double height space.
More text
Plans for the fit-out include connecting all levels with a new blackened steel staircase that descends from the smaller ground floor entrance and office space, down to the edit suites on lowest floor.
A new office fitout for a video production company, with editing suites along with spaces for desk work, collaboration and socialising. The unusual layout of the 3-floor shell space, within a new development near London Fields, includes a dramatic double height space.
More text
Plans for the fit-out include connecting all levels with a new blackened steel staircase that descends from the smaller ground floor entrance and office space, down to the edit suites on lowest floor.
A new office fitout for a video production company, with editing suites along with spaces for desk work, collaboration and socialising. The unusual layout of the 3-floor shell space, within a new development near London Fields, includes a dramatic double height space.
More text
Plans for the fit-out include connecting all levels with a new blackened steel staircase that descends from the smaller ground floor entrance and office space, down to the edit suites on lowest floor.
A new office fitout for a video production company, with editing suites along with spaces for desk work, collaboration and socialising. The unusual layout of the 3-floor shell space, within a new development near London Fields, includes a dramatic double height space.
More text
Plans for the fit-out include connecting all levels with a new blackened steel staircase that descends from the smaller ground floor entrance and office space, down to the edit suites on lowest floor.











Process









Drawings









147.
Archer's Mark
Year:
2018
Location: Hackney, London
, UK
Category:
Private
, Workspace
, Arts
Read more about how we work on arts projects.