Rose Cottage
Location: Hampstead, London
, UK
Status: Built
2017-19


Rose Cottage sits quietly among the terraced houses of the Vale of Health, a tucked-away, characterful and leafy enclave within Hampstead Heath. The cottage came to its new owners in need of care, and the project began as an act of stewardship — a considered refurbishment to secure the building's future and honour its accumulated history.
Read More
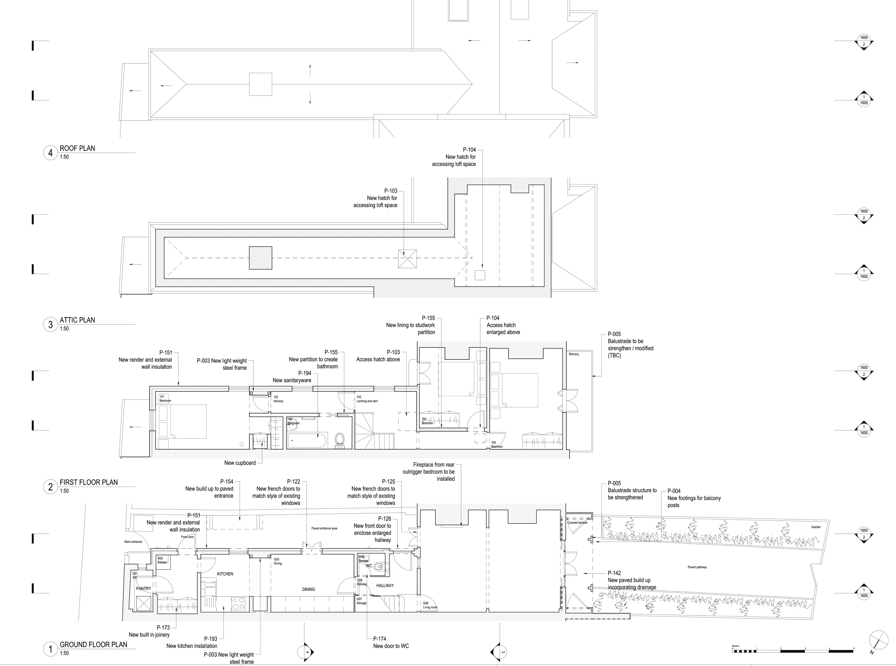
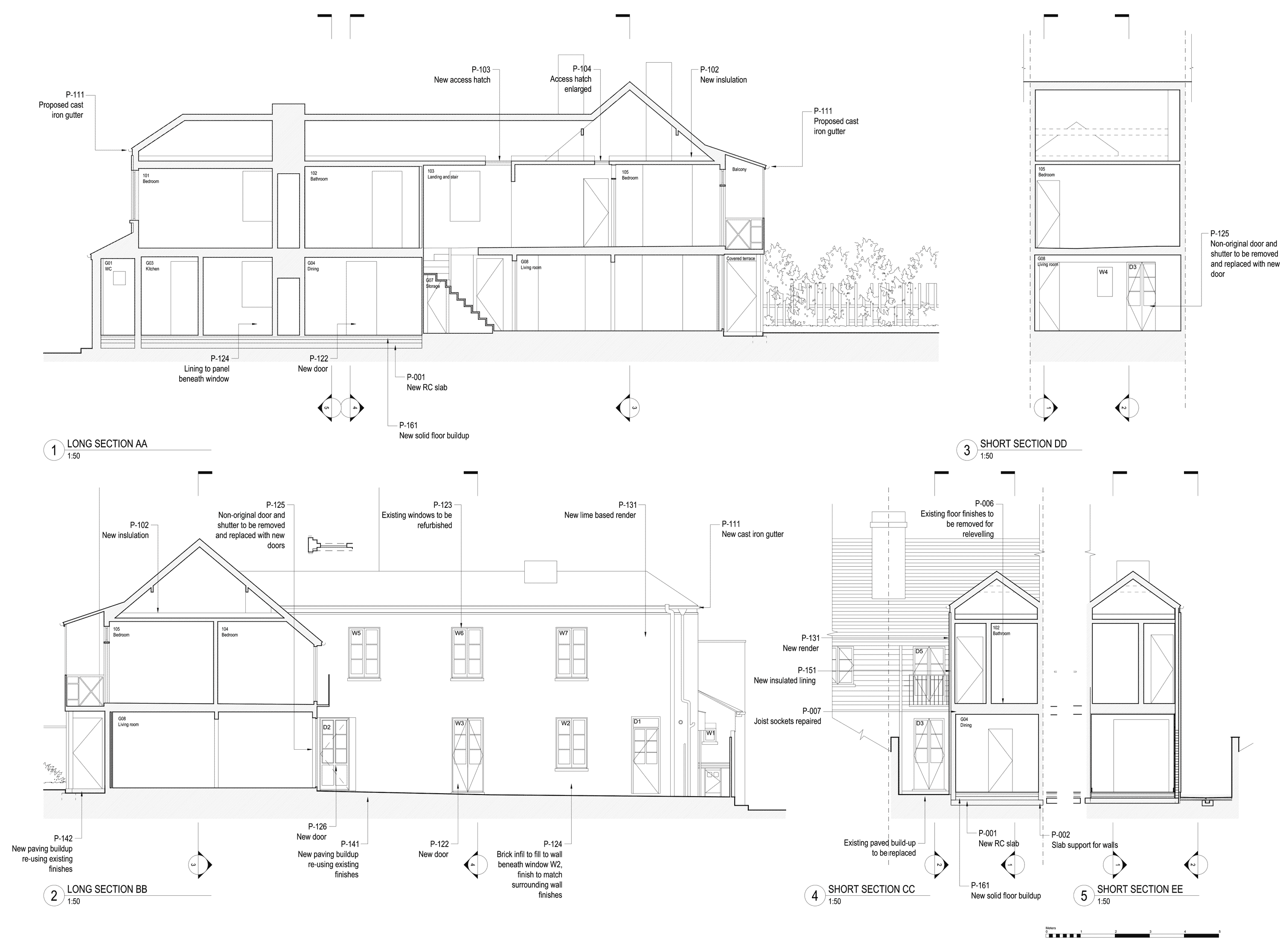
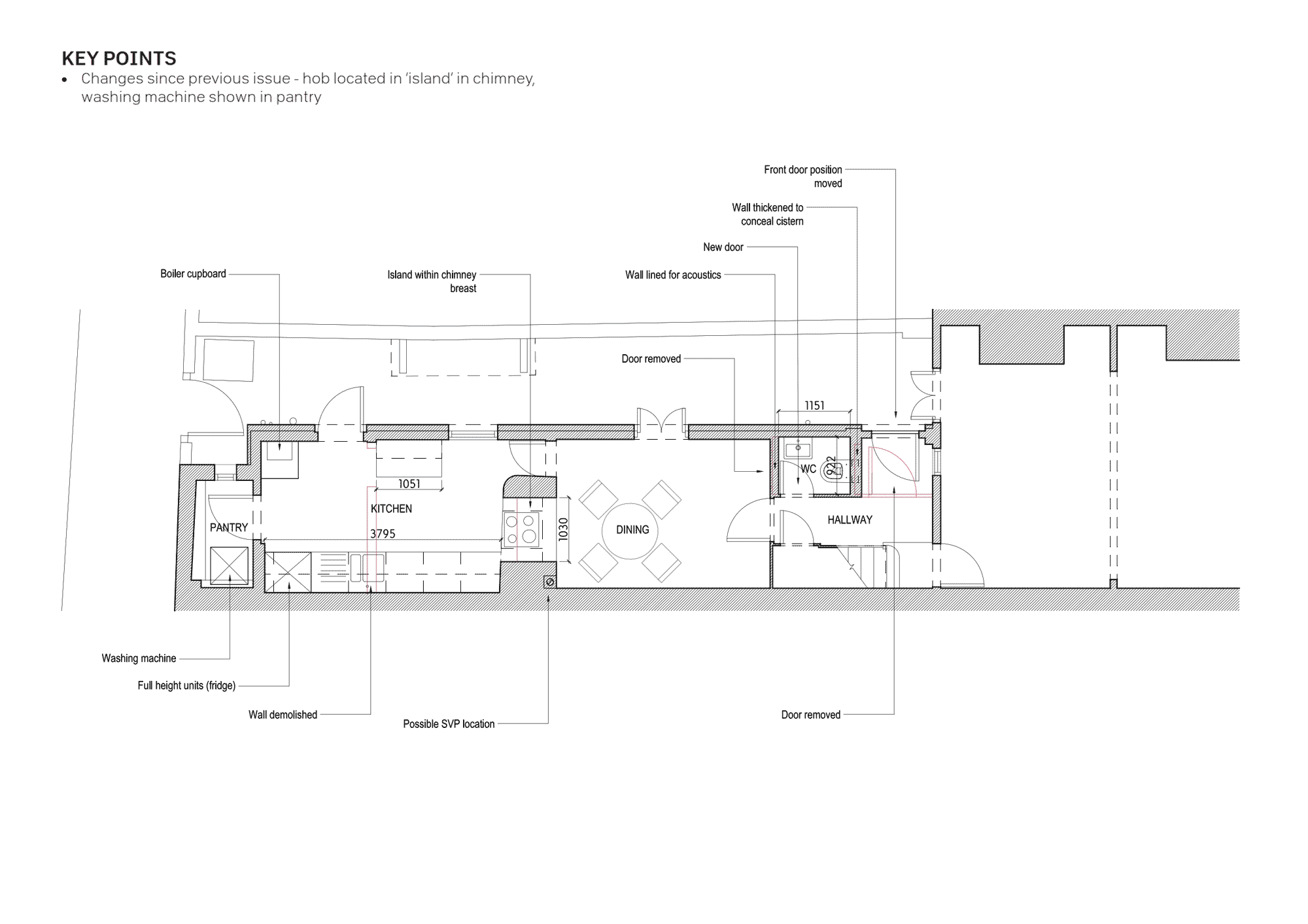
The work centres on the rear outrigger, a modest but significant addition that had grown awkward over time. Rather than remove, the approach has been to reinterpret: the existing chimney masonry is reworked to open a visual connection between the two ground-floor kitchen rooms, while a series of careful interventions — a removed partition, a relocated bathroom, a new front door that echoes an existing one — quietly transform the plan without unsettling the whole.
Energy use was substantially improved by adding external wall insulation to the bedroom wing, with careful detailing around windows and roof eaves, and careful justification in the listed building application.
The result is a home more suited to the way people live now, arrived at through patience and an attentiveness to what was already there.



Process
Concept design
Construction




Original site conditions




Drawings



135.
Rose Cottage
Year:
2017-19
Restrictions: Grade II Listed, Conservation area
CF team: Oliver Cooke
Structural engineer: Philip Cooper, Cambridge Architectural Research Ltd.
Project manager: Nicola George Project Management
Heritage consultant: Neil Burton, Architectural History Partnership
Read more about how we work on heritage projects.


