Concert Wall
2016
123-1
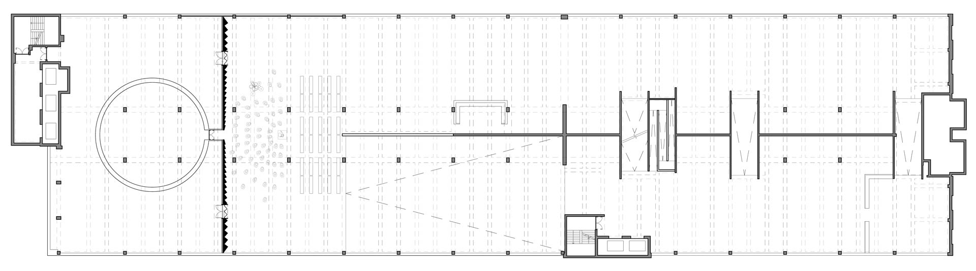
Concert Wall is a concertinaed plywood screen which provides an acoustic and visual backdrop for live performances in an event space in the Peckham multi-storey car park. The project was developed with resident orchestra Multi-Storey and acousticians in order to ensure performers and large audiences could better hear and enjoy live music onsite.
More text
We have twice been commissioned by Bold Tendencies to help bring to life their vision for an experimental civic and live arts space atop a disused multi-storey car park in Peckham.
Our first intervention - Concert Wall - created a dedicated venue within the car park capable of hosting large scale musical events, including the first ever BBC Proms performance from a car park.
Shallow valleys in the centre of the wall gradually unfold across the width of the car park into much larger, deeper bays at the outer areas. The curtain-like form plugs into the raw dimensions and character of the original covered car park, spanning its full 33 metres.
The geometry of the panels improves the playing experience and reflects a greater proportion of the sound out towards the audience.
Moments of luxury: We worked hard with the client to ensure that we could inject moments of luxury through imaginative yet economical use of fine materials.
Birch plywood is the primary material, used in its natural state to bring warmth to the in-situ concrete surroundings. The angled plywood units have an anodised aluminium profile at the corner junction, and are fixed back to a precise CNC-cut zig-zag substructure. Two double doorways to the fire exit and green room are made as richly textured walnut-lined portals.
Our second project with Bold Tendencies - a viewing platform and ticket booth - was later required to manage increased visitor numbers.
Concert Wall is a concertinaed plywood screen which provides an acoustic and visual backdrop for live performances in an event space in the Peckham multi-storey car park. The project was developed with resident orchestra Multi-Storey and acousticians in order to ensure performers and large audiences could better hear and enjoy live music onsite.
More text
We have twice been commissioned by Bold Tendencies to help bring to life their vision for an experimental civic and live arts space atop a disused multi-storey car park in Peckham.
Our first intervention - Concert Wall - created a dedicated venue within the car park capable of hosting large scale musical events, including the first ever BBC Proms performance from a car park.
Shallow valleys in the centre of the wall gradually unfold across the width of the car park into much larger, deeper bays at the outer areas. The curtain-like form plugs into the raw dimensions and character of the original covered car park, spanning its full 33 metres.
The geometry of the panels improves the playing experience and reflects a greater proportion of the sound out towards the audience.
Moments of luxury: We worked hard with the client to ensure that we could inject moments of luxury through imaginative yet economical use of fine materials.
Birch plywood is the primary material, used in its natural state to bring warmth to the in-situ concrete surroundings. The angled plywood units have an anodised aluminium profile at the corner junction, and are fixed back to a precise CNC-cut zig-zag substructure. Two double doorways to the fire exit and green room are made as richly textured walnut-lined portals.
Our second project with Bold Tendencies - a viewing platform and ticket booth - was later required to manage increased visitor numbers.
Concert Wall is a concertinaed plywood screen which provides an acoustic and visual backdrop for live performances in an event space in the Peckham multi-storey car park. The project was developed with resident orchestra Multi-Storey and acousticians in order to ensure performers and large audiences could better hear and enjoy live music onsite.
More text
We have twice been commissioned by Bold Tendencies to help bring to life their vision for an experimental civic and live arts space atop a disused multi-storey car park in Peckham.
Our first intervention - Concert Wall - created a dedicated venue within the car park capable of hosting large scale musical events, including the first ever BBC Proms performance from a car park.
Shallow valleys in the centre of the wall gradually unfold across the width of the car park into much larger, deeper bays at the outer areas. The curtain-like form plugs into the raw dimensions and character of the original covered car park, spanning its full 33 metres.
The geometry of the panels improves the playing experience and reflects a greater proportion of the sound out towards the audience.
Moments of luxury: We worked hard with the client to ensure that we could inject moments of luxury through imaginative yet economical use of fine materials.
Birch plywood is the primary material, used in its natural state to bring warmth to the in-situ concrete surroundings. The angled plywood units have an anodised aluminium profile at the corner junction, and are fixed back to a precise CNC-cut zig-zag substructure. Two double doorways to the fire exit and green room are made as richly textured walnut-lined portals.
Our second project with Bold Tendencies - a viewing platform and ticket booth - was later required to manage increased visitor numbers.
Concert Wall is a concertinaed plywood screen which provides an acoustic and visual backdrop for live performances in an event space in the Peckham multi-storey car park. The project was developed with resident orchestra Multi-Storey and acousticians in order to ensure performers and large audiences could better hear and enjoy live music onsite.
More text
We have twice been commissioned by Bold Tendencies to help bring to life their vision for an experimental civic and live arts space atop a disused multi-storey car park in Peckham.
Our first intervention - Concert Wall - created a dedicated venue within the car park capable of hosting large scale musical events, including the first ever BBC Proms performance from a car park.
Shallow valleys in the centre of the wall gradually unfold across the width of the car park into much larger, deeper bays at the outer areas. The curtain-like form plugs into the raw dimensions and character of the original covered car park, spanning its full 33 metres.
The geometry of the panels improves the playing experience and reflects a greater proportion of the sound out towards the audience.
Moments of luxury: We worked hard with the client to ensure that we could inject moments of luxury through imaginative yet economical use of fine materials.
Birch plywood is the primary material, used in its natural state to bring warmth to the in-situ concrete surroundings. The angled plywood units have an anodised aluminium profile at the corner junction, and are fixed back to a precise CNC-cut zig-zag substructure. Two double doorways to the fire exit and green room are made as richly textured walnut-lined portals.
Our second project with Bold Tendencies - a viewing platform and ticket booth - was later required to manage increased visitor numbers.
Concert Wall is a concertinaed plywood screen which provides an acoustic and visual backdrop for live performances in an event space in the Peckham multi-storey car park. The project was developed with resident orchestra Multi-Storey and acousticians in order to ensure performers and large audiences could better hear and enjoy live music onsite.
More text
We have twice been commissioned by Bold Tendencies to help bring to life their vision for an experimental civic and live arts space atop a disused multi-storey car park in Peckham.
Our first intervention - Concert Wall - created a dedicated venue within the car park capable of hosting large scale musical events, including the first ever BBC Proms performance from a car park.
Shallow valleys in the centre of the wall gradually unfold across the width of the car park into much larger, deeper bays at the outer areas. The curtain-like form plugs into the raw dimensions and character of the original covered car park, spanning its full 33 metres.
The geometry of the panels improves the playing experience and reflects a greater proportion of the sound out towards the audience.
Moments of luxury: We worked hard with the client to ensure that we could inject moments of luxury through imaginative yet economical use of fine materials.
Birch plywood is the primary material, used in its natural state to bring warmth to the in-situ concrete surroundings. The angled plywood units have an anodised aluminium profile at the corner junction, and are fixed back to a precise CNC-cut zig-zag substructure. Two double doorways to the fire exit and green room are made as richly textured walnut-lined portals.
Our second project with Bold Tendencies - a viewing platform and ticket booth - was later required to manage increased visitor numbers.


























Process
In use for classical music events including BBC Proms








CNC cut internal plywood panels provided the backing for the varying angles






Drawings



123-1.
Concert Wall
Year:
2016
Location: London
, UK
Category:
Public
, Arts
Read more about how we work on arts projects.