Corbyn Street
2021-23
183
A young family of four in Finsbury Park needed more space. Both parents work from home, the children are growing up, and their Victorian terrace wasn't quite keeping up. The brief was straightforward — create more space without leaving a street and community they valued.
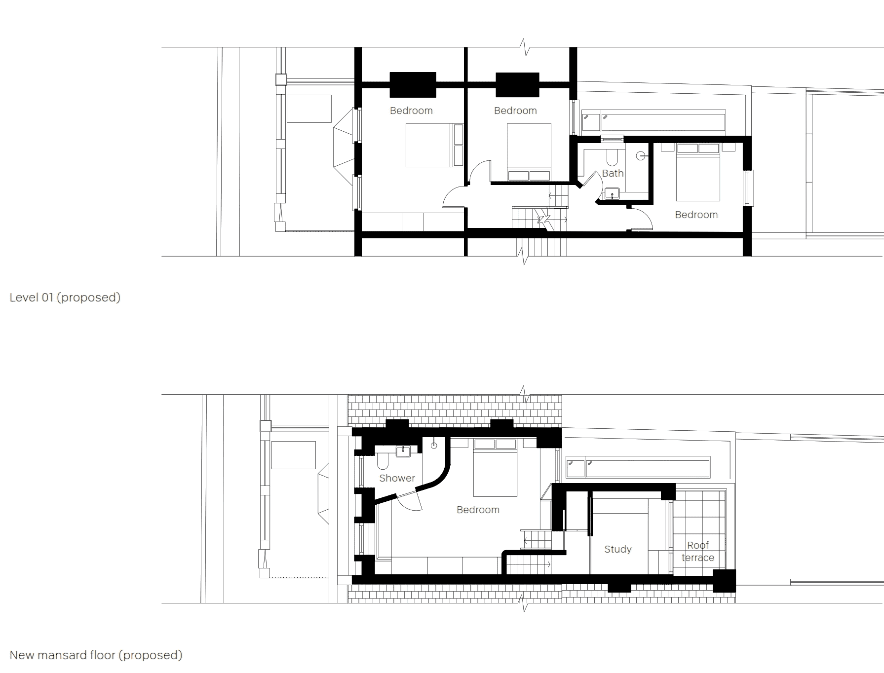
The new loft became the best room in the house. We turned what's usually the least generous floor into a sculptural master suite with an ensuite bathroom and an external terrace. The terrace wasn't in the original brief but emerged through design studies and became a central organising element, dictating the bathroom location and creating unexpected outdoor space at second floor level.
More text
The bathroom sits on the street side as a curved pod that carves into the bedroom floor plate. It's an approach we developed on this project: the curve creates spatial dynamics where the bed feels held whilst the bathroom and adjacent dressing area feel more private. The curved wall reads as a sculptural element rather than a partition.
We clad the extension in zinc with standing seams, expressed as a sculptural form. The front elevation is deliberately composed with sharp dormers and concealed gutter detailing. The rear is driven more by interior requirements and planning constraints around existing datums. Built-up zinc upstands frame the roof lights rather than sitting flush, emphasising the materiality. The Velux rooflights have flip-clean operation and integrated blackout blinds on upstands. The clients were clear about their blackout requirements from the start, which let us specify the detail early in the design process.
Hidden sliding fire doors across the stairwell let the plan stay open whilst meeting Building Regulations. They slide across both the study and the short stair to the bedroom, creating an intermediate landing space with access to laundry.
The ground floor extension already existed, designed by the clients' previous architect. It's a really nicely designed space that stood the test of time, so we worked in the same spirit of differentiating new from old rather than attempting pastiche.
The clients stayed in their community. The top floor remains minimal — joinery doing the architectural work rather than furniture and decoration. It's what we set out to achieve: a loft extension that doesn't feel like a compromise.
A young family of four in Finsbury Park needed more space. Both parents work from home, the children are growing up, and their Victorian terrace wasn't quite keeping up. The brief was straightforward — create more space without leaving a street and community they valued.
The new loft became the best room in the house. We turned what's usually the least generous floor into a sculptural master suite with an ensuite bathroom and an external terrace. The terrace wasn't in the original brief but emerged through design studies and became a central organising element, dictating the bathroom location and creating unexpected outdoor space at second floor level.
More text
The bathroom sits on the street side as a curved pod that carves into the bedroom floor plate. It's an approach we developed on this project: the curve creates spatial dynamics where the bed feels held whilst the bathroom and adjacent dressing area feel more private. The curved wall reads as a sculptural element rather than a partition.
We clad the extension in zinc with standing seams, expressed as a sculptural form. The front elevation is deliberately composed with sharp dormers and concealed gutter detailing. The rear is driven more by interior requirements and planning constraints around existing datums. Built-up zinc upstands frame the roof lights rather than sitting flush, emphasising the materiality. The Velux rooflights have flip-clean operation and integrated blackout blinds on upstands. The clients were clear about their blackout requirements from the start, which let us specify the detail early in the design process.
Hidden sliding fire doors across the stairwell let the plan stay open whilst meeting Building Regulations. They slide across both the study and the short stair to the bedroom, creating an intermediate landing space with access to laundry.
The ground floor extension already existed, designed by the clients' previous architect. It's a really nicely designed space that stood the test of time, so we worked in the same spirit of differentiating new from old rather than attempting pastiche.
The clients stayed in their community. The top floor remains minimal — joinery doing the architectural work rather than furniture and decoration. It's what we set out to achieve: a loft extension that doesn't feel like a compromise.
A young family of four in Finsbury Park needed more space. Both parents work from home, the children are growing up, and their Victorian terrace wasn't quite keeping up. The brief was straightforward — create more space without leaving a street and community they valued.
The new loft became the best room in the house. We turned what's usually the least generous floor into a sculptural master suite with an ensuite bathroom and an external terrace. The terrace wasn't in the original brief but emerged through design studies and became a central organising element, dictating the bathroom location and creating unexpected outdoor space at second floor level.
More text
The bathroom sits on the street side as a curved pod that carves into the bedroom floor plate. It's an approach we developed on this project: the curve creates spatial dynamics where the bed feels held whilst the bathroom and adjacent dressing area feel more private. The curved wall reads as a sculptural element rather than a partition.
We clad the extension in zinc with standing seams, expressed as a sculptural form. The front elevation is deliberately composed with sharp dormers and concealed gutter detailing. The rear is driven more by interior requirements and planning constraints around existing datums. Built-up zinc upstands frame the roof lights rather than sitting flush, emphasising the materiality. The Velux rooflights have flip-clean operation and integrated blackout blinds on upstands. The clients were clear about their blackout requirements from the start, which let us specify the detail early in the design process.
Hidden sliding fire doors across the stairwell let the plan stay open whilst meeting Building Regulations. They slide across both the study and the short stair to the bedroom, creating an intermediate landing space with access to laundry.
The ground floor extension already existed, designed by the clients' previous architect. It's a really nicely designed space that stood the test of time, so we worked in the same spirit of differentiating new from old rather than attempting pastiche.
The clients stayed in their community. The top floor remains minimal — joinery doing the architectural work rather than furniture and decoration. It's what we set out to achieve: a loft extension that doesn't feel like a compromise.
A young family of four in Finsbury Park needed more space. Both parents work from home, the children are growing up, and their Victorian terrace wasn't quite keeping up. The brief was straightforward — create more space without leaving a street and community they valued.
The new loft became the best room in the house. We turned what's usually the least generous floor into a sculptural master suite with an ensuite bathroom and an external terrace. The terrace wasn't in the original brief but emerged through design studies and became a central organising element, dictating the bathroom location and creating unexpected outdoor space at second floor level.
More text
The bathroom sits on the street side as a curved pod that carves into the bedroom floor plate. It's an approach we developed on this project: the curve creates spatial dynamics where the bed feels held whilst the bathroom and adjacent dressing area feel more private. The curved wall reads as a sculptural element rather than a partition.
We clad the extension in zinc with standing seams, expressed as a sculptural form. The front elevation is deliberately composed with sharp dormers and concealed gutter detailing. The rear is driven more by interior requirements and planning constraints around existing datums. Built-up zinc upstands frame the roof lights rather than sitting flush, emphasising the materiality. The Velux rooflights have flip-clean operation and integrated blackout blinds on upstands. The clients were clear about their blackout requirements from the start, which let us specify the detail early in the design process.
Hidden sliding fire doors across the stairwell let the plan stay open whilst meeting Building Regulations. They slide across both the study and the short stair to the bedroom, creating an intermediate landing space with access to laundry.
The ground floor extension already existed, designed by the clients' previous architect. It's a really nicely designed space that stood the test of time, so we worked in the same spirit of differentiating new from old rather than attempting pastiche.
The clients stayed in their community. The top floor remains minimal — joinery doing the architectural work rather than furniture and decoration. It's what we set out to achieve: a loft extension that doesn't feel like a compromise.
A young family of four in Finsbury Park needed more space. Both parents work from home, the children are growing up, and their Victorian terrace wasn't quite keeping up. The brief was straightforward — create more space without leaving a street and community they valued.
The new loft became the best room in the house. We turned what's usually the least generous floor into a sculptural master suite with an ensuite bathroom and an external terrace. The terrace wasn't in the original brief but emerged through design studies and became a central organising element, dictating the bathroom location and creating unexpected outdoor space at second floor level.
More text
The bathroom sits on the street side as a curved pod that carves into the bedroom floor plate. It's an approach we developed on this project: the curve creates spatial dynamics where the bed feels held whilst the bathroom and adjacent dressing area feel more private. The curved wall reads as a sculptural element rather than a partition.
We clad the extension in zinc with standing seams, expressed as a sculptural form. The front elevation is deliberately composed with sharp dormers and concealed gutter detailing. The rear is driven more by interior requirements and planning constraints around existing datums. Built-up zinc upstands frame the roof lights rather than sitting flush, emphasising the materiality. The Velux rooflights have flip-clean operation and integrated blackout blinds on upstands. The clients were clear about their blackout requirements from the start, which let us specify the detail early in the design process.
Hidden sliding fire doors across the stairwell let the plan stay open whilst meeting Building Regulations. They slide across both the study and the short stair to the bedroom, creating an intermediate landing space with access to laundry.
The ground floor extension already existed, designed by the clients' previous architect. It's a really nicely designed space that stood the test of time, so we worked in the same spirit of differentiating new from old rather than attempting pastiche.
The clients stayed in their community. The top floor remains minimal — joinery doing the architectural work rather than furniture and decoration. It's what we set out to achieve: a loft extension that doesn't feel like a compromise.














































Awards & Press
Dwell+, 20 October 2025: How a London Couple Literally Raised the Roof of Their Victorian Terrace House (Mandi Keighran) link
Process















Drawings






183.
Corbyn Street
Year:
2021-23
Location: Finsbury Park, London
, UK
Category:
Private
Team: Oliver Cooke, Laura Davis-Lamarre, John McGrath
Structures: SD Engineers
Contractor: CR Group