Consort Road
2016-18
118
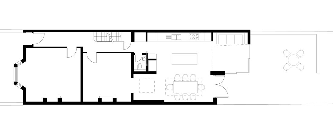
After moving into this Victorian terraced house, located in a Conservation Area, our client wanted to make a much stronger connection to the very long garden, which the existing arrangement ignored. A well-lit, new side return extension creates width for new kitchen and dining spaces, and a dramatic fully-glazed double-height garden room links up to a study space upstairs.
More text
Previously uninsulated external walls of the rear structures are insulated externally to significantly reduce energy use, and finished with a rough dark-grey render. New and replaced areas of ceiling are built with exposed Douglas fir joists, which combine with the kitchen and timber flooring to bring warmth to the space.
New steel structure was carefully coordinated with the large windows and rooflights so as not to obstruct the corner access and sight lines, and the main beam carrying the floors above is left exposed. The thin-framed sliding doors open at the corner, leading onto the paved terrace and extensive garden beyond.
After moving into this Victorian terraced house, located in a Conservation Area, our client wanted to make a much stronger connection to the very long garden, which the existing arrangement ignored. A well-lit, new side return extension creates width for new kitchen and dining spaces, and a dramatic fully-glazed double-height garden room links up to a study space upstairs.
More text
Previously uninsulated external walls of the rear structures are insulated externally to significantly reduce energy use, and finished with a rough dark-grey render. New and replaced areas of ceiling are built with exposed Douglas fir joists, which combine with the kitchen and timber flooring to bring warmth to the space.
New steel structure was carefully coordinated with the large windows and rooflights so as not to obstruct the corner access and sight lines, and the main beam carrying the floors above is left exposed. The thin-framed sliding doors open at the corner, leading onto the paved terrace and extensive garden beyond.
After moving into this Victorian terraced house, located in a Conservation Area, our client wanted to make a much stronger connection to the very long garden, which the existing arrangement ignored. A well-lit, new side return extension creates width for new kitchen and dining spaces, and a dramatic fully-glazed double-height garden room links up to a study space upstairs.
More text
Previously uninsulated external walls of the rear structures are insulated externally to significantly reduce energy use, and finished with a rough dark-grey render. New and replaced areas of ceiling are built with exposed Douglas fir joists, which combine with the kitchen and timber flooring to bring warmth to the space.
New steel structure was carefully coordinated with the large windows and rooflights so as not to obstruct the corner access and sight lines, and the main beam carrying the floors above is left exposed. The thin-framed sliding doors open at the corner, leading onto the paved terrace and extensive garden beyond.
After moving into this Victorian terraced house, located in a Conservation Area, our client wanted to make a much stronger connection to the very long garden, which the existing arrangement ignored. A well-lit, new side return extension creates width for new kitchen and dining spaces, and a dramatic fully-glazed double-height garden room links up to a study space upstairs.
More text
Previously uninsulated external walls of the rear structures are insulated externally to significantly reduce energy use, and finished with a rough dark-grey render. New and replaced areas of ceiling are built with exposed Douglas fir joists, which combine with the kitchen and timber flooring to bring warmth to the space.
New steel structure was carefully coordinated with the large windows and rooflights so as not to obstruct the corner access and sight lines, and the main beam carrying the floors above is left exposed. The thin-framed sliding doors open at the corner, leading onto the paved terrace and extensive garden beyond.
After moving into this Victorian terraced house, located in a Conservation Area, our client wanted to make a much stronger connection to the very long garden, which the existing arrangement ignored. A well-lit, new side return extension creates width for new kitchen and dining spaces, and a dramatic fully-glazed double-height garden room links up to a study space upstairs.
More text
Previously uninsulated external walls of the rear structures are insulated externally to significantly reduce energy use, and finished with a rough dark-grey render. New and replaced areas of ceiling are built with exposed Douglas fir joists, which combine with the kitchen and timber flooring to bring warmth to the space.
New steel structure was carefully coordinated with the large windows and rooflights so as not to obstruct the corner access and sight lines, and the main beam carrying the floors above is left exposed. The thin-framed sliding doors open at the corner, leading onto the paved terrace and extensive garden beyond.









































Awards & Press
Don't Move Improve! Awards 2018 – Shortlist
Process






Drawings



118.
Consort Road
Year:
2016-18
Location: London
, UK
Category:
Private
Restrictions: Conservation area
Project 2016-17; Construction 2018
Team: Oliver Cooke, Francis Fawcett, Andy Gibbs
Structural design: Peter McGrath
Contractor: JK Construction