CAST
Location: Helston, Cornwall
, UK
Status: Built
Service: Architecture
Area: 1,120m² / 12,000ft²
Client: Cornubian Arts & Science Trust
2016-18


Built in three phases from 1897, the Passmore Edwards Institute is one of Helston's most significant civic buildings. It fell into neglect after 1972, and spent the following decades resisting repeated attempts to convert it into flats. When CAST asked us to help in 2015, the building was already informally in use as artists' studios. The question was whether it could be made to work properly: financially, physically, and for the community it sits within.
Read More
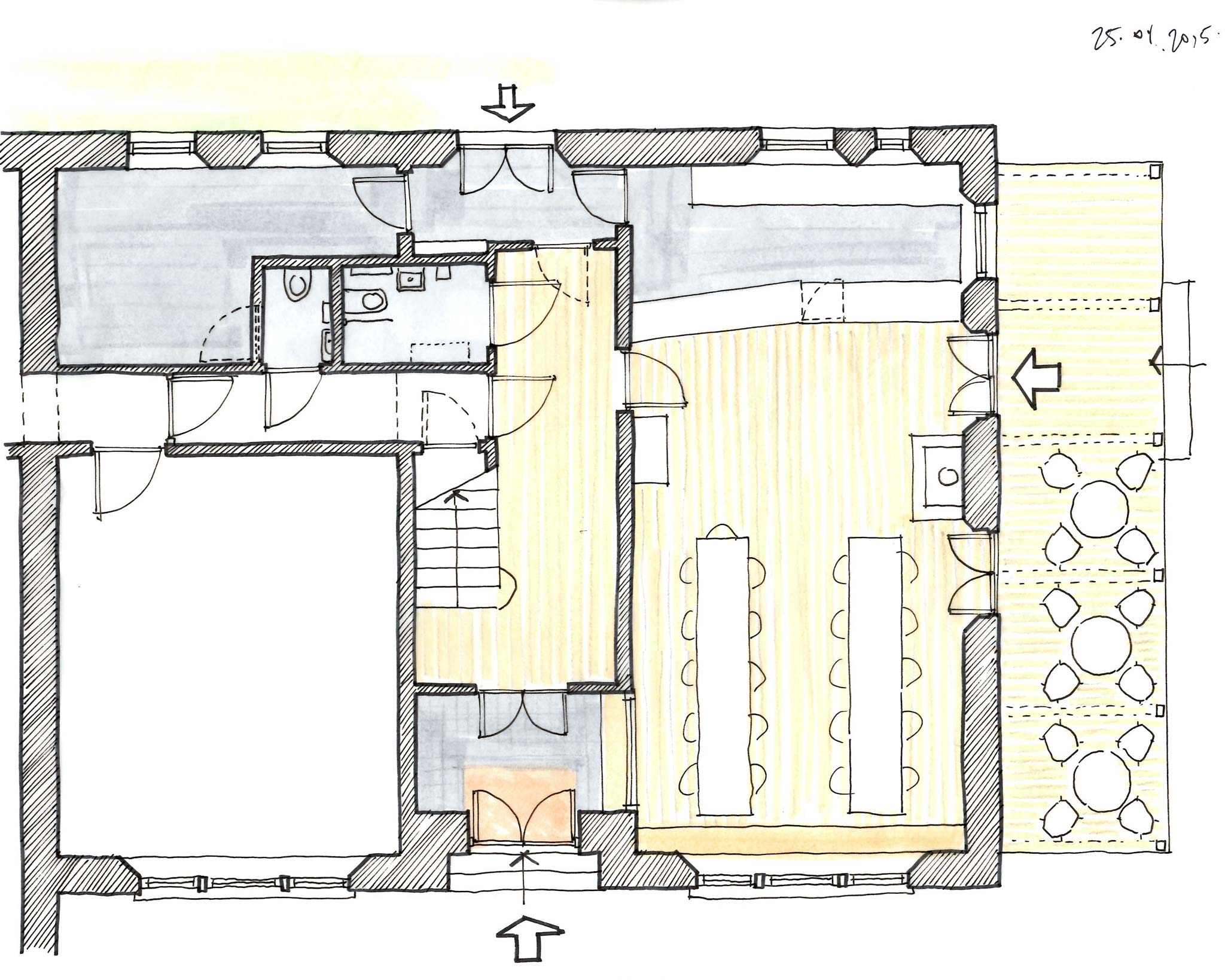
We began with a feasibility study and strategic brief, working with CAST's trustees to define what the building needed to become. The key moves were concentrated at ground floor: a new 57sqm café with a 12.5sqm commercial kitchen carved from underused space, with two existing windows converted to full-height doors opening onto a south-west facing terrace. A new external ramp to Penrose Road makes the building step-free for the first time, and accessible WC provision was incorporated as part of the café and kitchen works. In the rest of the building, former classrooms were converted into art studios, offices for CAST, and an artist’s residency. The former assembly hall and dining room, originally envisaged as flexible community space, secured separate funding to become a dedicated AV screening room. The strategy formed the basis of a successful Arts Council England funding application.
Planning consent was secured for the external works with Cornwall Council supportive of bringing a locally listed building back into active use. Construction was delivered in collaboration with local conservation architect Alison Bunning.
The vision we set out in 2015 continues to shape CAST's development: new stairs connecting the building to the adjacent town museum are now under way, forming a small cultural quarter around the Penrose Road site. The café remains the most public element of the building, drawing visitors in from the town.








Process
Concept design
Construction


Original condition of the building














Drawings



116.
CAST
Year:
2016-18
Restrictions: Locally listed, Conservation area
Project 2015-17; Construction 2018-19
Team: Oliver Cooke, Francis Fawcett, Andy Gibbs
Collaborator: Alison Bunning - link
Photos: Graham Gaunt, Cooke Fawcett
Read more about how we work on arts projects.
Read more about how we work on heritage projects.











