Warwick Square Apartments
Location: Pimlico, London
, UK
Status: Built
Service: Architecture, Interiors
Area: 480m²
Client: Eggar Forrester Group Ltd.
2015–19

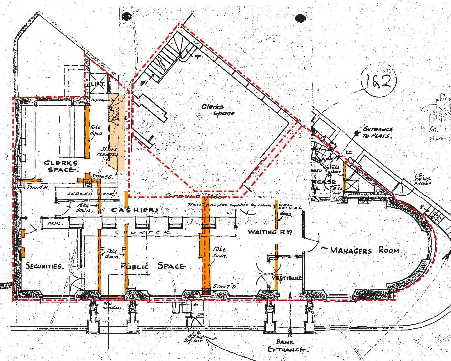
We were brought in to reorganise and renovate a series of Regency-style listed buildings on Warwick Square. This involved making sense of a rambling series of offices, including the vaults of a former bank, to create three generous contemporary apartments. We reformed the spaces into new maisonette style homes intended for families, a typology underserved by the market in that part of London. The project was shortlisted for a RIBA Retrofit Award.
Read More
The buildings sit on a ‘flatiron’-shaped plot which produces some intricate geometrical problems to solve. Our intention was to make an internal treatment that was contemporary in feel, performed a useful function, yet was fitting for the buildings' Regency styling when viewed from the street.
In plan the scheme has little relationship to that of the original building, but from the street and from inside, the arrangement feels appropriate.









Process
Concept design
Construction







Original site condition and historic analysis







Drawings




114.
Warwick Square Apartments
Year:
2015–19
Restrictions: Grade II, Conservation area
CF team: Oliver Cooke, Francis Fawcett, Andy Gibbs
Structures: Philip Cooper, Cambridge Architectural Research Ltd.
MEP & Lighting design: Steensen Varming
Cost consultant: Huntley Cartwright
Planning: Planning Lab
Contractor: James McGrath & Sons
Photos: Peter Landers
Read more about how we work on heritage projects.


